切换到宽版
  • 6阅读
  • 1回复

[奇观]上海新场古镇民宿 / 间筑设计//河北aranya金山岭百米粒 / ATLAS 工作室[54P] [复制链接]

上一主题 下一主题
在线jjybzxw

UID: 551814

 

发帖
221791
金币
693093
道行
2006
原创
2450
奖券
3340
斑龄
42
道券
1233
获奖
0
座驾
设备
摄影级
在线时间: 48110(小时)
注册时间: 2008-10-01
最后登录: 2026-01-26
只看楼主 倒序阅读 使用道具 楼主  发表于: 3小时前
上海新场古镇民宿 / 间筑设计[32P]

上海新场古镇民宿 / 间筑设计 2026-01-25 21:08 发布于:山西省

© 胡斯远
椿鲤民宿项目位于上海市郊新场古镇附近。初次到达基地,周边大片连绵的水稻田令人心旷神怡。稻田的辽阔与自然气息便成为设计的灵感来源,奠定了项目与自然共生的基调。

▲建筑旁边亦有纵横交错的水系©胡斯远

▲建筑的南侧和东侧视野非常开阔©胡斯远

▲民宿相对周边稻田地势较高©胡斯远
有别于品牌民宿的诸多既定限制,椿鲤民宿的业主更希望将自由度给到设计师。初次沟通时,业主仅口述了他的基本诉求:在满足房间数量和公共区域功能的同时,充分利用户外及屋顶露台的空间。原建筑为两栋独立的农民自建房,其形态与内部空间均无法满足现代民宿的功能需求。我们希望在保留原有结构的基础上,尽量避免大刀阔斧的改动,而是就势而为去打造一个包含11间客房及宴会厅、棋牌室等复合功能的民宿。同时,正是这样一个自然而然、“不强求”的稻田民宿,相应的方案也需具备充分的灵活性,以应对旧改项目中常见的报建及施工不确定因素,力求在现实条件与理想愿景之间取得平衡。

▲建筑原貌©间筑设计
守望者,与自然串联
设计以“守望”为精神内核,强调建筑与周边稻田景观的关系。在成本可控的前提下,设计尽可能多地保留了原建筑结构,包括入口处的木结构双坡屋顶平房。同时,通过串联、对景以及室内外空间的交错,使建筑成为自然环境中的一部分,让这栋建筑像稻田中的“守望者”一样,独具一格却又让人安心。

▲建筑与道路的关系©胡斯远
设计以动线作为组织各空间的核心,让游走于其中本身变成一件有趣的事。首先,利用围墙将两栋建筑及院落整合为统一的场域;继而,在长方形场地的三个角落植入了三个建筑体量作为“连接件”,分别承载大堂、凉亭、宴会厅等公共功能。这一策略不仅梳理了公共与私密区域的逻辑关系,也有效的串联起了室内与室外的空间。

▲手绘图©间筑设计

▲东侧立面©胡斯远
同时,顺应原有地势,在大堂中设置了下沉卡座区,既与小院形成了独特的视线对景,也为室内引入了自然光与庭院景观,从而丰富了半户外空间的层次。

▲与庭院结合的户外动线©胡斯远

▲户外动线亦可到达各个区域©胡斯远

▲顶层客房独享的户外露台©胡斯远

▲天窗将自然光引入室内沐浴空间©胡斯远
新与旧,保留与介入的平衡
在改造中,设计师审慎处理新旧关系。例如入口处的双坡老屋,尽管在风格上与其他新建体量略有差异,但最终未做过多的改动,仅出于安全考虑将原有屋面更换为铝镁锰板。新增部分亦秉持“每一处介入皆有缘由”的原则。如客房泡池区窗外的造景,它并非仅为营造意境的装饰,更是为了巧妙包裹沿墙布置且不甚美观的管线,体现了设计对真实性与整体性的追求。

▲大堂区域将庭院延伸至室内©胡斯远

▲下沉卡座区让人心情放松©胡斯远

▲利用原本两栋建筑间的间隙做了半户外庭院©胡斯远

▲每间客房都有直通户外的设计©胡斯远

▲一层客房均设置了独立院落©胡斯远

▲每间客房的开窗都结合了户外景观©胡斯远

▲每个房间的泡池均有开窗取景©胡斯远
与大多数旧建筑改造项目一样,椿鲤民宿也面临严控成本与适配当地施工水平的挑战。通过采用固定家具系统,整合解决了客房内的多种功能需求,同时有效降低了总体成本。同时,在设计过程中,充分考虑了在地施工工艺水平,尽量简化施工节点,选用易于实施且耐久的材料与构造方式,确保设计理念的高完成度落地。

▲成本考量,走道空间多为裸露结构©胡斯远
▲玄关的几种“开启方式”©胡斯远
“稻田守望者”是间筑设计对自然、记忆与场所精神的一次回应。我们期望这栋建筑在满足功能需求之外,更能成为连接人与土地、过去与未来的媒介,守护水土与时光。

▲夜幕下的民宿更显寂静©胡斯远


▲夜晚的民宿与内庭院©胡斯远

▲南侧立面夜景©胡斯远

▲夜晚稻田中望向民宿入口©胡斯远

▲夜晚泳池一侧的景观小品©胡斯远

▲夜幕下的东立面©胡斯远

▲夜晚内院中的木栈道供住客游走与休憩©胡斯远
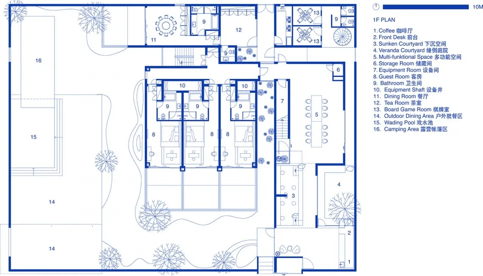
项目图纸

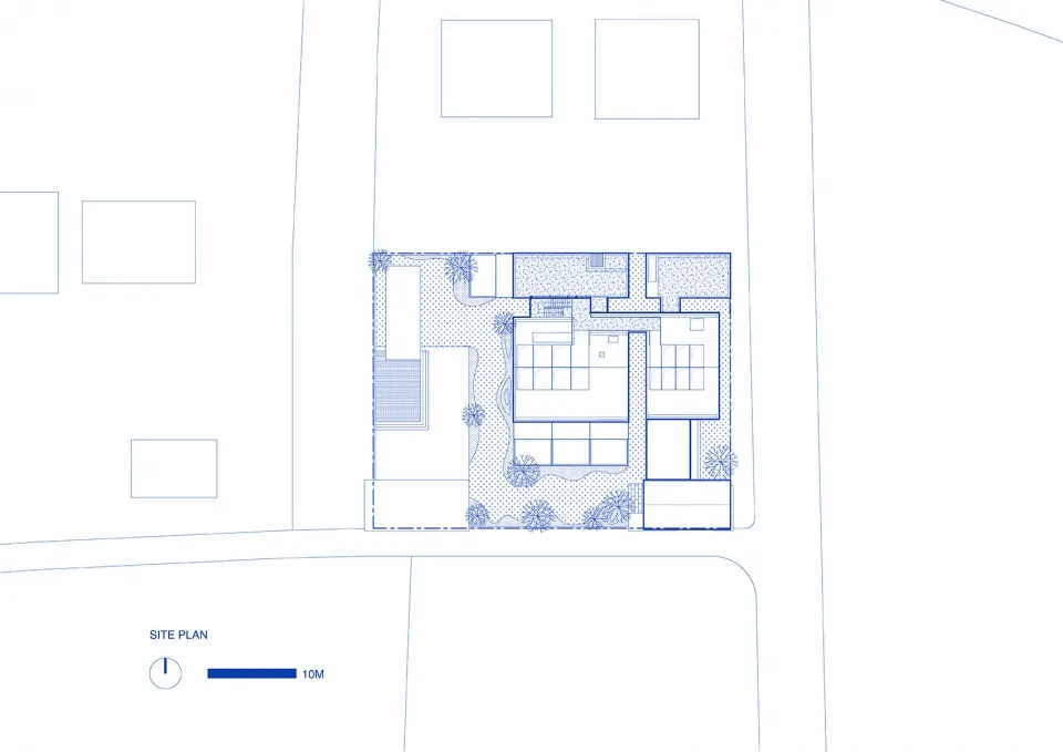
▲总平面图© 间筑设计

▲一层平面图© 间筑设计

▲二层平面图© 间筑设计

▲三层平面图© 间筑设计

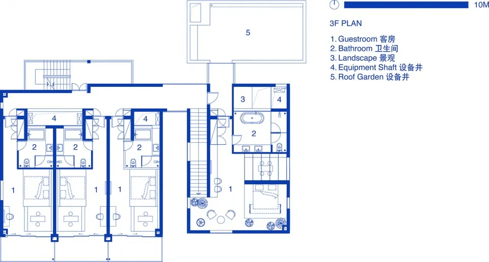
▲四层&屋顶平面图© 间筑设计

▲东立面图© 间筑设计

▲南立面图© 间筑设计

▲西立面图© 间筑设计

▲北立面图© 间筑设计
功能:民宿、咖啡厅
设计时间:2023.05 – 2024.04
施工时间:2024.02 – 2024.08
地点:上海市浦东区
建筑面积:897平方米
景观面积:773平方米
团队:肖磊,邓兆静、邓彩仪、滋埜悠司、沈瑞杰
类型:建筑、室内及景观
状态:建成
摄影师:胡斯远
========================================================================================================================================

河北aranya金山岭百米粒 / ATLAS 工作室[22P]


餐厅与社区关系对比
围火而聚
百米粒是一家历经由北京到大理的湘菜馆,主打温馨适口有品位的创意菜系,本次落地河北承德金山岭,建筑方案以“围火而聚”为叙事主题,将古老仪式重新诠释为现代审美,以令人升起温暖感受的原木拼贴,调和山居生活的寂闲清冷,打造富有社区感、烟火气的亲民餐饮体验。

餐厅入口处

从楼梯口看二层餐区

从用餐区看厨房出餐口
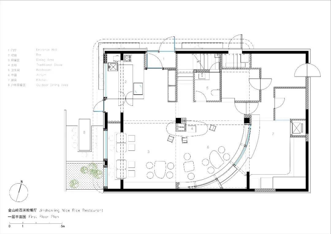
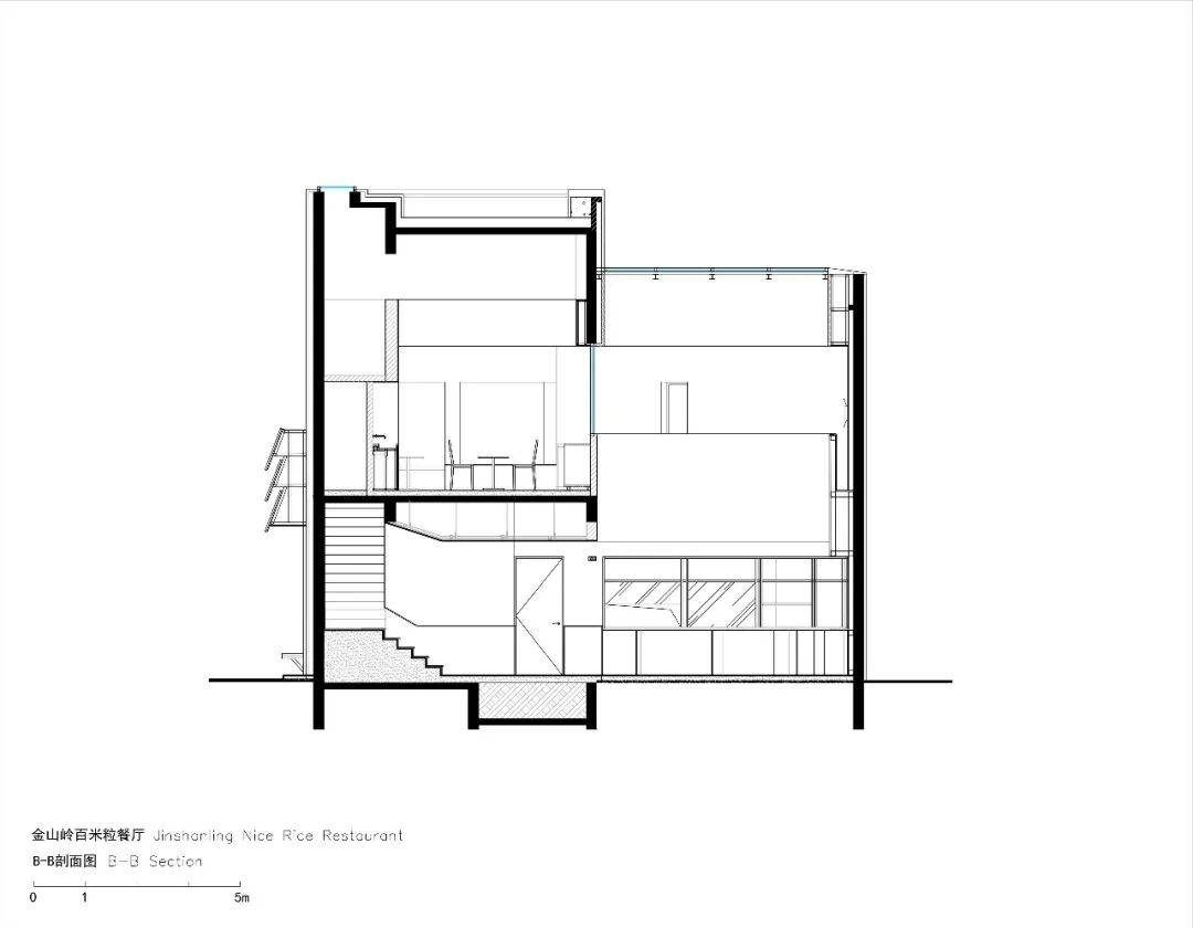
原建筑同为2层3开间两进深的长方形标准户型,一层有中庭天井空间,二层拥有1/3面积的户外露台。

灯具装置风筝特写
以原天井空间为原点,近乎3.5米的巨型灶台被设置在中心位置,灶台由天然绿色大理石板敷面,质感斑驳,令人想起波提切利时代经典马赛克镶嵌艺术,不同颜色和大小的石粒也呼应了“百米粒”品牌的精神。黑色烟囱大而醒目直插屋顶,定位空间全新秩序与美学基调,一层同餐区域环绕灶台布置,从两侧出入口通道经吧台直达,紧贴墙壁定制的展示橱柜与储存单元,以环抱灶台为中心的四分之一处圆弧形墙壁收尾,同时作为空间隔断,分开厨房与用餐区。

圆洞开窗构成立面图案

中庭保留顶光
洞天福地
借用原天井空间通高,设计方案顺势将屋面开口以玻璃幕墙封闭处理,自然光线由露台与屋顶汇入一层餐区,当阳光照射,光线聚于室内,牙白墙壁与赤陶砖面形成强烈反差,提亮室内光照明度。从室外天井到室内天井的转变,使餐区拥有一处筒状形体化空间,强化了环壁炉四周竖向动势,对中间体量的向心式组织,生动展现了用餐环境的聚集属性。

围绕烟囱与灶台设计核心区域

夜晚的餐厅
二层空间被划分为4个独立用餐区,除露台用餐区外,室内拥有两处私密包厢,与一处开放区,较底层空间相比,上层空间更小型更私密,墙面依旧使用温暖原木饰面包覆,保持材质连贯性。

二层用餐室

二层包厢

一层到二层的楼梯间
事实上,食物烹饪是一门有关想象力的学科。空间中尝试使用多种不规则圆形图案,呼应百米粒品牌的有机质感,从外立面吸人眼球的窗洞设计到餐区桌椅搭配,从二层包间的隔断墙体到天井圆洞开口,每个元素都凝聚着餐厅及主理人天马行空的创意能量。

一层居中的灶台

一层用餐区
室内照明设计旨在为空间叙事增添层次感。一层中庭的风筝装置灯具,与studiososlow工作室合作,脱胎于非遗工艺与当代设计的理念碰撞,从空中垂坠直下,连续飘悬,因风而动,搭配红土色地砖与原木桌椅,唤起秋日的丰饶诗意。楼梯间甄选的白色壁灯宛如一粒粒饱满的大米。二层开放区的“云朵”吊灯,购自由Frank Gehry设计的量产系列,具有无法言说的奇异感,其褶皱、卷曲、凸起和凹痕的标志性外观,夺人眼目。隐藏的中心光源消弭室外和室内空间界限,这些光影装置唤醒了人们对建筑体验中的自然意蕴的感知。
设计图纸








分析图
项目名称:aranya金山岭百米粒
项目类型:餐饮
建筑面积:200 sqm
地点:河北金山岭
项目时间: 2024 /11 - 2025/06
业主:百米粒
设计方:ATLAS 工作室
设计团队:周贞徵,蔡琼莹 ,王雪晶, 江荆宏
主要材料:稻壳漆,四季绿大理石,陶瓷砖,黑钛钢,橡木,软木,艺术涂料
灯具装置:studiososlow,Belux Cloud
幕墙施工方:秦皇岛昊钥建筑工程有限公司
室内施工方:中昱阳光(北京)装饰工程有限公司
摄影:胡雪慢
撰文:Hongsoo
[ 此帖被jjybzxw在2026-01-26 09:19重新编辑 ]
山庄提示: 道行不够,道券不够?---☆点此充值☆
 
在线jjybzxw

UID: 551814


发帖
221791
金币
693093
道行
2006
原创
2450
奖券
3340
斑龄
42
道券
1233
获奖
0
座驾
设备
摄影级
在线时间: 48110(小时)
注册时间: 2008-10-01
最后登录: 2026-01-26
只看该作者 沙发  发表于: 3小时前
建筑叙事中的场所精神:从稻田守望到围火而聚——上海椿鲤民宿与河北百米粒餐厅的设计对话
一、上海椿鲤民宿:稻田中的“守望者”与自然共生
1. 场所精神的提取  
项目位于上海浦东新场古镇旁,周边稻田连绵、水系纵横。设计以“守望”为内核,将建筑定义为稻田的“观察者”而非“主导者”。这种定位体现在:
视线通廊:通过南侧与东侧大面积开窗,将稻田景观引入室内,形成“借景”效果;
地势呼应:保留原有地势高差,在大堂设置下沉卡座区,与庭院形成视线对景,强化“看与被看”的关系;
材料隐喻:入口处保留木结构双坡屋顶老屋,仅更换铝镁锰板屋面,既延续传统肌理,又通过金属反光呼应现代性。

2. 空间组织的“灵活性”  
面对旧改项目的报建及施工不确定性,设计采用“模块化”策略:
功能整合:利用两栋农民房之间的间隙打造半户外庭院,通过三个“连接件”(大堂、凉亭、宴会厅)串联公共与私密区域;
动线设计:以围墙整合场地,户外动线可直达各功能区,顶层客房独享露台,每间客房均设直通户外的门,模糊室内外边界;
成本控制:采用固定家具系统满足客房多功能需求,走道空间裸露结构以减少装饰成本,同时选用耐久材料(如橡木、软木)确保长期使用。

3. 光影与自然的“诗意介入”  
设计通过光影强化场所记忆:
天窗引入:在客房沐浴空间设置天窗,让自然光成为“动态装饰”;
夜景营造:夜晚通过庭院灯光与稻田的黑暗形成对比,突出建筑轮廓,泳池侧景观小品成为视觉焦点。

学术关联:  
椿鲤民宿的设计逻辑与卒姆托(Peter Zumthor)“建筑作为体验容器”的理念相通,尤其体现在对自然光、材料质感的细腻处理上。例如,下沉卡座区的自然光引入,与卒姆托在瓦尔斯温泉浴场中对光线的控制异曲同工。
二、河北百米粒餐厅:围火而聚的“社区仪式”
1. 叙事主题的构建  
项目以“围火而聚”为线索,将湘菜馆的烟火气转化为空间语言:
中心灶台:3.5米高的巨型灶台成为空间核心,绿色大理石斑驳质感呼应“百米粒”品牌名,黑色烟囱直插屋顶,定义垂直轴线;
环形动线:一层用餐区环绕灶台布置,通过吧台、展示橱柜、弧形隔断划分区域,强化“向心性”;
天井改造:保留原建筑天井,以玻璃幕墙封闭,引入自然光,形成“洞天福地”般的筒状空间,提升室内明度。

2. 材料与形式的“有机对话”  
设计通过材料与形式呼应品牌创意:
圆形母题:从外立面窗洞、餐区桌椅到二层包间隔断,均采用不规则圆形图案,隐喻“米粒”的有机形态;
材质对比:牙白墙壁与赤陶砖面形成冷暖对比,橡木饰面与黑钛钢收边平衡温暖与现代感;
灯具叙事:一层中庭的风筝装置灯具(与非遗工艺合作)、二层的“云朵”吊灯(Frank Gehry设计)通过光影层次强化空间诗意。

3. 社区感的“空间策略”  
餐厅通过空间设计促进社交互动:
二层私密性:划分4个独立用餐区(2个包厢+1个开放区),墙面延续原木饰面,保持材质连贯性;
垂直联系:楼梯间白色壁灯模拟“米粒”形态,成为空间过渡的趣味元素;
视觉渗透:厨房出餐口与用餐区通过展示橱柜隔断,既保持功能分离,又增强视觉互动。

文化隐喻:  
“围火而聚”的主题可追溯至人类原始聚落的火塘文化,设计通过现代语言重构这一古老仪式,使餐厅成为金山岭社区的“精神灶台”。这种策略与安藤忠雄在“光之教堂”中对宗教仪式的空间转译类似,均通过核心元素定义场所精神。
三、对比分析:自然共生与社区仪式的差异化解法
| 维度       | 上海椿鲤民宿                     | 河北百米粒餐厅                 |
|----------------|--------------------------------------|--------------------------------------|
| 场所精神   | 稻田的“守望者”,强调建筑与自然的对话 | 社区的“灶台”,重构围火聚会的仪式感 |
| 空间策略   | 模块化连接件串联功能,模糊室内外边界 | 中心灶台定义垂直轴线,环形动线强化向心性 |
| 材料语言   | 保留老屋木结构,新介入部分克制       | 原木、大理石、陶瓷砖的对比与呼应   |
| 光影运用   | 自然光引入沐浴空间,夜景突出轮廓     | 天井采光提亮室内,灯具装置增添层次 |
| 文化隐喻   | 传统农耕文明的现代转译             | 原始火塘仪式的当代重构             |

共同价值:  
两项目均通过设计回应场所的“隐性需求”——椿鲤民宿守护稻田记忆,百米粒餐厅激活社区互动。这种“以空间修复关系”的实践,体现了建筑作为社会媒介的潜力。
四、实践启示:小规模项目的“设计伦理”
1. 尊重在地性:  
椿鲤民宿保留稻田景观与老屋结构,避免过度设计;  
百米粒餐厅采用当地材料(如赤陶砖)与工艺(如非遗灯具),降低文化冲突。

2. 平衡功能与诗意:  
民宿通过天窗、下沉卡座等细节提升体验,而非追求形式夸张;  
餐厅以灶台为核心,通过材料与光影营造“烟火气”而非符号化装饰。

3. 控制成本与完成度:  
民宿采用固定家具系统、裸露结构降低成本;  
餐厅通过模块化灯具(如量产“云朵”灯)实现性价比与艺术性的平衡。
结语:建筑作为“记忆的容器”
椿鲤民宿与百米粒餐厅的设计实践,揭示了小规模项目如何通过精准的场所解读与克制的空间干预,成为承载集体记忆与社区情感的媒介。无论是稻田中的守望,还是围火而聚的仪式,均证明建筑的价值不仅在于形式创新,更在于其对人与环境关系的深刻回应——这或许正是当代建筑最本真的使命。

如何不发帖就快速得到金币道行
 
快速回复
限120 字节
认真回复加分,灌水扣分~
 
上一个 下一个