-
UID: 1569053 
-
- 注册时间2012-06-21
- 最后登录2026-04-30
- 在线时间22886小时
-
- 发帖181437
- 搜Ta的帖子
- 精华2
- 金币624546
- 道行20030
- 原创769
- 奖券471
- 斑龄0
- 道券30
- 获奖0
-
访问TA的空间加好友用道具
UID: 1569053 
- 发帖
- 181437
- 金币
- 624546
- 道行
- 20030
- 原创
- 769
- 奖券
- 471
- 斑龄
- 0
- 道券
- 30
- 获奖
- 0
- 座驾
-
- 设备
-
- 摄影级
-
在线时间: 22886(小时)
注册时间: 2012-06-21
最后登录: 2026-04-30
|
—
本帖被 xgch 执行加亮操作(2026-04-24)
—

设计单位
Shenzhen University Institute of Architecture Design & Research_GL Studio
地址
深圳
建筑面积
54690 m²
项目年份
2025
摄影
ACF, Liqi Lu, Kaixing Luo
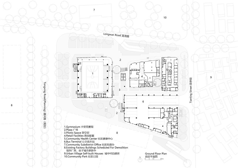
玉塘文化体育中心位于深圳市光明区玉塘街道天寮社区,地处一个由密集的城中村环境和周边工业区环绕而成的中心地带。该项目被规划为一个高度整合的公共综合设施,涵盖了众多公共活动区域,包括体育馆、图书馆、文化中心、艺术画廊、表演场地、社区卫生服务中心、公交站台和零售设施等。该项目总建筑面积约 54,690 平方米(地上约 29,000 平方米,地下约 25,690 平方米),主要服务于附近城中村的居民以及相邻的工业工人。周边的工业用地目前正在进行更新改造,使得该项目处于一个不断变化的城市环境中。 Yutang Culture and Sports Center is located in Tianliao Community, Yutang Subdistrict, Guangming District, Shenzhen, at a local center enclosed by a dense urban-village context and surrounding industrial areas. Conceived as a highly integrated civic complex, the project accommodates a wide range of public programs including a sports hall, library, cultural center, art gallery, performance space, community health service center, bus terminal, and retail facilities. With a total floor area of approximately 54,690 square meters—about 29,000 square meters above ground and 25,690 square meters below—the project primarily serves residents of nearby urban villages as well as the adjacent industrial workforce. The surrounding industrial land is currently undergoing renewal, situating the project within an urban context that remains in flux. 该区域的特点是建筑规模较小且中等,密度较高,日常生活层次密集,而可供公众使用的公共空间长期以来一直十分有限。为此,这座建筑被设计成一个能够持续容纳各种公共活动的空间框架。通过形式和功能的系统性重组,该项目支持多样且共存的社区生活模式。 The area is characterized by small- and medium-scale buildings, high density, and densely layered everyday life, while accessible public space has long been limited. In response, the building is conceived as a spatial framework capable of continuously accommodating diverse public activities. Through the systematic reorganization of form and program, the project supports diverse and co-existing patterns of community life. 该建筑并非以单一的整体体量来回应城市,而是以一种具有渗透性的、分散的建筑单元群落的形式进行布局。公共空间嵌入在这些单元之中,使得城市空间能够延伸至建筑外部、建筑之间以及建筑群内部。通过这种方式,该项目与密集且多样化的城市结构建立了空间上的对应关系。 Rather than responding to the city with a singular, consolidated volume, the architecture is organized as a porous, clustered aggregation of multiple building units. Public spaces are embedded among these units, allowing urban space to extend across the exterior, between buildings, and within the complex itself. In this way, the project establishes a spatial correspondence with the dense and heterogeneous urban fabric. 公共空间呈垂直布局,向上展开形成一个连续的空间系统。在地面层,开放的广场直接与主体育馆、零售空间以及社区卫生服务中心相连,容纳了日常频繁的活动。在此基础上方,文化设施围绕着半开放式的高架平台进行布局,这些平台构成了公共生活的关键节点。室内和室外的楼梯、平台和桥梁构成了一个网络,将地面、平台和屋顶花园连接起来,形成了连续的步行序列,并通过移动提供了多层次的空间体验。 Public space is organized vertically and unfolds upward as a continuous spatial system. At ground level, open plazas are directly connected to the main sports hall, retail spaces, and the community health service center, accommodating frequent everyday activities. Above this base, cultural facilities are organized around semi-open elevated platforms that form key nodes of public life. A network of indoor and outdoor staircases, terraces, and bridges connects the ground, platforms, and roof gardens, creating a continuous pedestrian sequence and offering layered spatial experiences through movement. 在满足各种公共活动需求的同时,该建筑营造出多样化的空间氛围,在繁忙拥挤的日常生活之中提供了精神和美学滋养的时刻。每个主要功能区都具有独特的空间特色。体育馆以清晰开阔的结构布局为特色,用于举办体育赛事和公共集会。图书馆围绕着中央阅览室和阳光庭院进行布局,阅读走廊和小型庭院构成了一个宁静温暖的内部环境。文化中心由柔和弯曲、连续的空间构成,连接多个活动区域和花园,提供一种流畅、蜿蜒的空间体验。表演空间通过灵活的座位安排在剧院和现场演出两种模式下运作,深色金属表面和声学照明营造出强烈的感官体验。艺术画廊以纯粹的空间比例和平静柔和的自然光为特色,在通往屋顶花园的光廊处成为一种沉思体验的时刻。 While accommodating diverse public activities, the architecture offers a range of spatial atmospheres, providing moments of spiritual and aesthetic nourishment within dense, crowded everyday life. Each major program develops its own distinct spatial character. The sports hall is defined by a clear and open structural order that supports athletic events and public gatherings. The library is organized around a central reading hall and light court, with reading galleries and small courtyards forming a calm and warm interior environment. The cultural center is shaped by softly curved, continuous spaces that connect multiple activity areas and gardens, offering a fluid, meandering spatial experience. The performance space operates in both theatre and live-house modes through a flexible seating arrangement, with dark metal surfaces and acoustic lighting creating a heightened sense of sensory presence. The art gallery is defined by pure spatial proportions and calm, softened natural light, where a light corridor leading to the roof garden becomes a moment of contemplative experience.   蓝色砖块曾经是广明地区传统宗祠的重要建筑材料之一。通过将蓝色砖块、裸露的混凝土以及半透明的 U 型玻璃以分层的材料语言相结合,该项目在当代建筑与逐渐消逝的当地建筑传统之间建立了对话,赋予公共空间一种可感知的时间深度感。 Blue brick once formed an important material expression of traditional ancestral halls in the Guangming area. By combining blue brick, exposed concrete, and translucent U-glass in a layered material language, the project establishes a dialogue between contemporary construction and gradually disappearing local building traditions, endowing the public spaces with a palpable sense of temporal depth. 项目图纸▲平面图 ▲剖面图
福建永安的群山褶皱里,藏着一座怪得出奇的古堡——安贞堡。 说它怪,是因为它偏偏建在软烂的沼泽上,却稳稳当当站了一百多年;更怪的是,夏天堡外蚊虫成团、蛛网挂树,堡内却清清爽爽,连只蚊子都找不见。 当年土匪围了一个月,愣是没啃动这块硬骨头。 这座“土堡之父”是清光绪年间池家父子花14年盖起来的,光银元就砸了9万块,粮米吃掉8000多石,房子有300多间。 最绝的是地基,沼泽地撑不住石头,他们就先铺上18层松木,松木泡水越泡越硬,硬是把烂泥潭变成了铁板一块。 外墙9米高,底厚4米,石基夯土,铁皮包门,门上还留着灌水孔专治火攻。墙上开了90多个瞭望窗、近200个射击孔,四角碉楼火力交叉,土匪来了只能干瞪眼。 里头有5口井、好几处粮仓,住上一个月不愁吃喝。 至于为啥没蚊子?老辈人说是壁画灵验——大门上画着仙童扫蜘蛛、引蝙蝠,驱灾纳福。 科学点的解释是堡里住满了蝙蝠,天一黑就出动吃蚊子,蜘蛛断了粮,自然搬了家。 建筑上也藏着小心思:房子坐西朝东,一进一进抬高,天井拼成“日”字和“昌”字,盼着家族兴旺。 门神画了秦琼和尉迟恭,二进院改画文臣,暗指“加官进爵”;台阶特意做成九级“活台阶”,既合规矩又显灵活。 这地方粗看像座堡垒,硬朗得很;细看木头雕花、满墙壁画,又透出南方老宅的秀气。 它不单是座老房子,更把活命的本事、过日子的盼头都夯进了墙里。 山风一吹,古堡安静得像睡着了。你要是看腻了网红景点,不妨拐进永安的深山里,踩一踩那片沼泽上的老地基——它漂了一百多年,还在等你。
|