-
UID: 1569053 
-
- 注册时间2012-06-21
- 最后登录2026-04-30
- 在线时间22886小时
-
- 发帖181415
- 搜Ta的帖子
- 精华2
- 金币624488
- 道行20030
- 原创769
- 奖券471
- 斑龄0
- 道券30
- 获奖0
-
访问TA的空间加好友用道具
UID: 1569053 
- 发帖
- 181415
- 金币
- 624488
- 道行
- 20030
- 原创
- 769
- 奖券
- 471
- 斑龄
- 0
- 道券
- 30
- 获奖
- 0
- 座驾
-
- 设备
-
- 摄影级
-
在线时间: 22886(小时)
注册时间: 2012-06-21
最后登录: 2026-04-30
|
—
本帖被 xgch 执行加亮操作(2026-04-25)
—

项目名称
苏州吴江松陵大道公交总站
用途
交通枢纽、商业
所在地(国家省市)
中国江苏省苏州市吴江区
用地面积(m2)
51,900.20 ㎡
建筑面积(m2)
253,321.56㎡
层数
地下3层、地上3层
檐口高度/最高高度(m)
23.900m/29.970m
主体结构
RC+S
竣工年月
2023年5月29日
业主
苏州市吴江恒运置业有限公司
主创设计
日建设计
主要业务范围
概念设计・建筑方案设计・建筑初步设计・施工图监修・公共部分内装方案 JV・共同设计・监理・咨询等
车站部分
启迪设计集团股份有限公司(Tus-Design Group Co., Ltd.)
住宅部分
中衡设计集团股份有限公司(Zhongheng Design Group Co., Ltd.)
施工单位
中国建筑一局(集团)有限公司China Construction First Group Corporation Limited
其他 设计合作企业
株式会社MINDSCAPE/LIGHTING PLANNERS ASSOCIATES/氏设计株式会社
照片来源1(中英)
杨敏/mintwow(yangmin/mintwow)
项目负责人信息
喜多主税
建筑设计总部设计部门设计总监
海上亚耶
建筑设计总部国际设计部门设计总监
赵靓
日建设计上海设计部主任
屠芳奇
日建设计上海设计部
龚运城
日建设计上海设计部
何佳琴
日建设计上海设计部高级项目经理
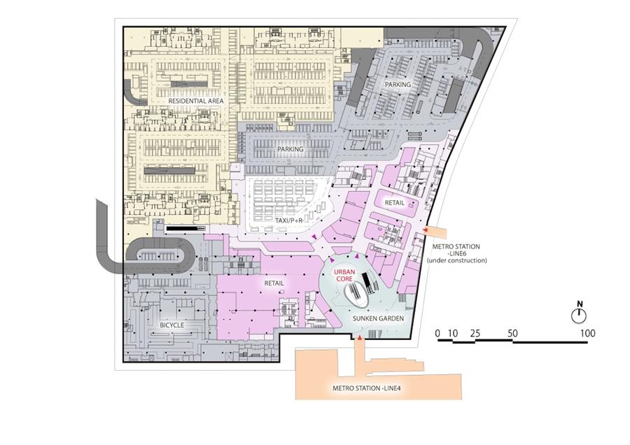
苏州这座距离上海100㎞的一流现代化大都市,也是一座曾孕育灿烂园林文化的古都。本项目位于苏州市郊人口集中的新开发区,距市中心约30分钟地铁车程,是一个人口中心。 Located 100km from Shanghai, Suzhou is both a first-class metropolis and an ancient city renowned for its flourishing garden culture. This project is situated in a newly developed suburban area approximately 30 minutes by subway from the city center that serves as a population hub. 周边水系纵横,散布着中国屈指可数的水乡古镇和古典园林,但如何在以高层住宅为主的新城市景观中传承文化底蕴,成为本项目面临的一大挑战。 While the surrounding area is dotted with some of China's most beautiful "water towns" and gardens, the project faced the challenge of how to preserve the local cultural heritage within a new urban landscape dominated by high-rise residential buildings. 该交通枢纽以两个巴士站为主,一个是服务当地的“专线巴士”, 另一个是连接其他城市和国际机场的“长途巴士”,此外还连接地铁和停车换乘设施,是新开发区域居民们日常使用的公共交通枢纽。 This facility serves as a daily public transportation hub for residents of the newly developed area, with two main bus terminals for local buses and long-distance buses connecting to other cities and international airports, as well as subway and park & ride connections. 我们致力于在合理规划多个公共交通的同时,打造一个优雅且充满活力的新型空间,使其既符合这座文化名城的深厚底蕴,又能承载众多市民的生活场景。 The goal was to provide a new space that is both elegant and vibrant, befitting a city with a rich cultural background, while also offering a reasonable plan for multiple public transportation options, as well as creating a scene that reflects people's daily lives. 1.在超级街区开发中提供“动态和变化的城市空间”——在高层住宅开发快速发展的中国大城市郊区,街区大多由以车辆交通为主的道路和围墙圈起的“小区”构成,人群聚集在广场和街道等公共空间的场景尚不常见。本枢纽被设计成一个宝贵的公共空间,人们因日常上班上学和旅行而聚集于此,他们的行为和活动都清晰可见。 1. Providing dynamic urban spaces within a "superblock" development – In the suburbs of China's growing major cities, high-rise residential development is rapidly advancing, resulting in a landscape dominated by small neighborhoods enclosed by roads and walls, and centered around car traffic. Public spaces such as squares and streets where people can gather remain scarce. This terminal was designed as a valuable public space where people gather for daily commuting, school, and travel, and where their movements and activities are visible. 沿主干道全长300m的线性建筑,其临街面是绿色散步道和连续的露台,内部是商业街,住宅区一侧是安静的广场,形成了有多种路线选择的街道网络。该设计向周边城市环境呈现出开放式街道的可访问性,营造出柔和、安全的氛围,同时还提供了多样化的城市空间。 Stretching for 300 meters along the main road, the linear building is connected to a green walking path and terraces at the front, a commercial space inside the building, and a quiet plaza on the residential side, creating a passage with various routes to choose from. It opens accessibility to the surrounding urban environment, offering a sense of "softness" and security while providing diverse urban spaces. 2.超越“功能性车站”、成为“享受移动的车站”——在与客户(开发商和交通局的合资企业)讨论新公交总站时,我们确立了共同目标,即不仅要满足日常和春节、国庆等重大节假日的运输需求,确保其作为交通基础设施的便利性与安全性,更要将其提升为可享受移动与停留乐趣的舒适空间。 2. Beyond a "functional station" to a "station where movement is enjoyable" – In discussions with the client (a joint venture between the developer and the local transportation bureau), the goal was shared to create a new bus terminal that meets two goals: address the convenience and safety requirements of daily commuters and to support the large-scale people movements that occur during the annual Spring Festival and National Day celebrations, while elevating the space into a comfortable environment.▲商业动线 建筑平面布局如同展开的翅膀,其两端部分别设有长途巴士和专线巴士的出发大厅,通透明亮的候车空间与公共绿地和街道相连。 Both sides of the wing-like plan are separated at the ends, with long-distance bus and local bus departure lobbies. A bright, transparent waiting space connects to public green spaces and the city. 在两翼交汇处的中央,以巴士到达大厅为中心,集中了所有与该设施相连的公共交通(巴士、地铁、出租车、停车换乘),并通过动态挑空空间“URBAN CORE”实现不同交通间的换乘,同时还连接着街道和商业设施。这种连接中央与端部的结构,能够清晰高效地引导人流。 All transportation options (buses, subways, taxis, park-and-ride) intersect around the arrival lobby, which is located at the center of the two wings. This configuration enables seamless transfers, guides people through the dynamic "URBAN CORE" atrium space, and connects to the city and commercial facilities.▲剖面分析图 这条功能动线作为平面与立体回游的街道,将商业和露台等公共空间叠加在一起。车站不再只是候车换乘时短暂利用的功能性空间,而是通过提供多样化场所,营造出丰富多彩的都市生活场景,让人们可以在呼吸新鲜空气、眺望公园绿植的同时,或饮茶或为家人购买特产。 This circulation route functions as a "street" with horizontal and vertical circulation as commercial and terrace spaces are layered on top of each other. Rather than simply passing through while awaiting a bus or a transfer, people can enjoy fresh air, gaze at the park's greenery while having tea, or buy souvenirs, creating diverse urban life moments.▲URBAN CORE剖面分析图 从地下3层贯穿至地上3层的垂直动线空间“URBAN CORE”是这座建筑的标志性空间,人们在各楼层有机交错和顶光营造的上升感的引导下自然而然地被唤起“移动”意愿。 The URBAN CORE vertical circulation space stretches from the third basement floor to the third above-ground floor, and is guided by the organic overlapping of each floor and the sense of elevation created by skylights. These factors make for an iconic space that naturally invites people's movement. 3.融合未来感与苏州园林文化的“全球本土化设计”——在中国,综合交通枢纽无疑将成为所在地区的门户象征。本枢纽也相当于大型开发区的“门户”,与之相称的规模感作为重要元素,面向主干道长而宽阔的立面通过锐利的水平线条,营造出强烈的速度感。同时,为了体现郊区开发区标志性建筑应有的场所性和地域性特征,我们尝试了一种更能触动苏州市民情感共鸣、更具人文深度的设计手法。远景观赏时,建筑优美水平线条营造出的磅礴力量感极为醒目,但当人们靠近建筑时,就会发现外立面玻璃后设有模仿水乡建筑格栅门窗的铝制屏风,以柔和的方式分隔开室内外空间。凹凸有致的“URBAN CORE”大天花板的设计灵感源自连绵的青瓦屋顶,细腻呈现着由采光顶倾泻而下的自然光随时间推移而产生的阴影变化,并通过观者移动时的视角转换展现出多样化的视觉效果。 3. "Glocal" design blends futuristic sensibility and Suzhou Garden culture – Comprehensive transportation terminals in China surely become the "face" of their respective regions. This terminal serves as the "gateway" to a massive development zone. In order to match the important element of its scale, the long frontage facing the main road is designed with sharp horizontal lines to evoke a sense of speed. At the same time, to fulfill the requirements of a symbolic building (in terms of place and regionality) in a suburban development zone, the design aims to create a more human-scale, layered space that resonates with the local population of Suzhou. In the distance, the strength of the beautiful horizon stands out, but as one approaches the building, aluminum perforated screens modeled after the lattice doors of water town architecture softly divide the interior and exterior. The undulating URBAN CORE ceiling, inspired by the interlocking roof tiles, delicately reflects the changing shadows cast by naturally lit skylights, and also changes with the shifting perspectives of persons moving through the space.   这种从远景到近景都充分考虑人们视觉尺度的设计理念,正是对苏州园林文化的致敬。我们用现代材料与技术诠释“全球本土化设计”理念,创造出契合这片土地的空间文化。 The design consideration that aligns the scale sight lines from distant to close-up view pays homage to the Suzhou Garden culture. By embodying "glocal" design with modern materials and technology, it creates a spatial culture befitting this location. 项目图纸▲项目区位 ▲平面图  大楼新方案
南京这些年一直在长高,但要问哪栋楼最拔尖,答案就是绿地金茂国际金融中心。只不过它的故事有点曲折,先是停工了好久,后来连模样都换了,据说要加一根天线,这背后到底发生了什么? 大楼新方案
这栋楼坐落在江北新区的核心地带,具体在浦口区定山大街和横江大道的东南角。2017年8月,绿地集团花了90亿元拿下这块地,里面包含了17个小地块,从一开始就是个大工程。 原设计方案
按设计,大楼主体结构高478.7米,顶上还有21米的冠,加起来499.8米,地上104层、地下5层,建筑面积超过27万平米。将来要放进顶级写字楼、国际五星级酒店、高端商场和社区配套,建成后就是江苏第一高,和江对岸450米的紫峰大厦遥遥相望。 原设计方案
设计方是美国的SOM建筑事务所,他们从南京老城里随处可见的明代城门、古桥拱券里找灵感,把“拱”用到了极致。 原设计方案
塔楼的造型方方正正,呼应“石头城”的别称,随着高度上升,体积慢慢收窄,切出斜角,既减小了风压,又显得很优雅。 每个空中大堂都做成拱形,像一个个大画框,朝着老城方向,也框进江景和新城的样子。 原设计方案
2019年5月,项目正式动工,到2023年3月,钢结构巨柱完成了第一次吊装。 施工场地实景图
 施工场地实景图
原本人们盼着2025年就能完工,可现实没那么顺利。早在2022年,就传出项目要停的闲话,官方和开发商辟了好几回谣。到了2023年6月,江北新区管理委员会因为合同纠纷,直接把开发商南京峰霄置业有限公司告上了法庭,这下问题彻底藏不住了。 大楼新方案
 大楼新方案
好在最近又出了新的规划,虽然不一定是最终版,但好歹有了转机,大楼的命运还得再等等看。 大楼新方案
近日,济南第一高双子塔正式更名,之前叫国惠科创中心,现在统一叫“山东发展双子中心”。 这个项目在于济南高新区汉峪金谷 B 区。建筑总高度220.65米,而且建筑的地位很高,是山东省重点建设工程,也是济南市重点项目 因为是双子塔,两栋塔楼都是45层,总建筑面积33.59万平方米,其中商业面积接近4.5万平方米,地上商业3.47万平方米,地下商业0.99万平方米,楼下配了3层商业裙房,地下有4层,包含设备夹层一共5层地下室。 建筑项目由山东国惠集团投资,山东惠威置业有限公司负责开发建设,施工任务落在中建二局北方公司济青分公司,幕墙工程由中建深圳装饰有限公司承建,项目2021年4月6日破土动工,主体结构在2023年9月顺利封顶。 建筑造型设计的很酷炫,两栋塔楼的楼体横截面都是平行六边形,和常见的方形盒子楼完全不同,裙房的设计也有说法,裙房在底部托住两栋塔楼,整体形态像是被裙房稳稳托起来的两块巨石,可以理解成裙房托举双塔的造型语言。 建筑设计的亮点在于两栋塔楼之间的连廊。38层到40层的位置,离地面162.70米到173.45米的高度。 这座连廊长41.6米,高10.75米,总重量接近1000吨,采用钢桁架结构体系,跨度达到45.5米,宽度20.8米,这个施工难度还是很大的,毕竟是在172米的高空架这么一座近千吨的连廊。 面对这个困难工程团队采用了地面拼装、液压整体提升的方案,动用650吨履带吊在地面完成拼装,再通过液压油缸数控提升技术把整个连廊一次性拉到指定高度。 这个连廊是作为云端观景平台向公众开放,站在这个高度往四周看,整个汉峪金谷和济南东城的城市面貌都能收进视线里。设计的非常好!
|