切换到宽版
  • 29阅读
  • 2回复

[奇观]厦门集美LAN书店 / 隅建筑+东南乡建//广州BarMine / 口口建筑[50P] [复制链接]

上一主题 下一主题
在线jjybzxw

UID: 551814

 

发帖
245425
金币
890090
道行
2006
原创
2465
奖券
3580
斑龄
45
道券
1580
获奖
0
座驾
设备
摄影级
在线时间: 52246(小时)
注册时间: 2008-10-01
最后登录: 2026-04-30
只看楼主 倒序阅读 楼主  发表于: 04-26
— 本帖被 xgch 执行加亮操作(2026-04-26) —
厦门集美LAN书店 / 隅建筑+东南乡建[33P]


▲外间©阿奇

▲里间©阿奇
概况
项目位于厦门集美集影视文创园内。由园区西一门进入后,沿主路直走,于转弯处可见一栋两层建筑, LAN书店便坐落于其首层。

▲道路转角的二层小楼©阿奇
走上几步石阶,便来到书店前的空地;再踏上前方的木平台,就进入了书店独有的半室外空间。书店入口位于门廊中部,其室内面积约为100平米,平面基本为方形。

▲书店入口夜景©陈向鹏
业主是一位爱书之人,对设计并无太多限制,主要诉求就是希望书店能够成为一个可以安静读书的地方。

▲吧台看向阅读区©阿奇
入口序列
书店空间序列的起点,从外部的门廊开始。尽管业主并未要求书店需要一个显眼的标识,但作为一个对外经营的场所,能够从周边环境中凸显出来,显然也不是一件坏事。只不过需要将形式从一个显眼的招牌转化为一个独特的空间。

▲空间序列©隅建筑
首先,将楼梯下方不便使用的部分用黑色钢板封住,主动塑造空间边界,摆脱消极感。其次,用防腐木将空间的顶部、底部包裹起来,让整个木色空间如同从周边环境中开辟出来的私有领地。人们从水泥地踏上木平台的瞬间,脚底触感的转变,木板发出的吱呀声,满眼的木色,都在提醒着顾客,他即将进入一个新的空间。

▲门廊空间©阿奇
门廊不再是一个穿越性空间,而是具备明确空间特性的场所。配上休息座椅,让空间具备一定的休憩功能,成为书店室内与园区的一个高效的缓冲地带。顾客可以在此休息,也可直接进入书店。

▲被防腐木包裹的门廊©阿奇
进入书店,需要穿越一个1.2米*1.2米的门洞空间。该空间外部采用防腐木贴面,内部镶嵌卡斯拉实木,地面铺设9块闽南红砖。既是对所在地建筑文化的些许回应,更是一种提醒,空间将再次发生转变。

▲门洞空间©阿奇
氛围与材料
穿过门洞,来到室内。迎面而来的承重墙,将书店划分为外间和里间;两根位于中央的梁则继续将空间细分为四个象限。

▲轴测图©隅建筑

▲书店中轴©阿奇
外间南侧为吧台区,北侧为阅读区。相较于内间阅读区的私密感,外间的阅读区则具备一定的公共属性,撤去不多桌椅后,便能腾出一个可以举办公共活动的场所。

▲阅读区看向吧台©阿奇
里间南侧为儿童绘本区,北侧同为阅读区。此处较外间更为安定,设有一张大书桌,可以在此安静阅读,当然,也可举行小型活动。

▲里间©阿奇
室内墙面以卡斯拉实木为主材,辅之色调相近的饰面板。木材的质感,确定了空间安定、柔和的气质。在2.8米以下墙体,用木材制作一个水平展开的柜体空间。柜体由三部分组成——基座、书架、顶板,三者共同构成了一个独立于大空间的次级空间。人们坐于基座之上,便能获得一种与大空间适当脱离的安定感。

▲吧台西侧空间©阿奇

▲外间阅读区©阿奇
2.8米以上空间则采用灰色质感材料喷涂,较深的色调与两根贯穿房间的大梁,为整个室内空间增添了一份厚重感。地面与吧台均采用灰色预制水磨石,色调与上部的涂料相近。两者共同形成一种水平延展的体验感。

▲里间©阿奇
白空间
为了弱化承重墙给室内空间带来的割裂感,设计在外间与里间交接处引入了一个“白空间”。该空间以承重墙为展示核心,采用白色饰面板包裹,两侧设置门洞和书架。将阻隔的墙体,转化为具备功能的流动空间。极大弱化了承重墙的存在感,加强了外间与里间的联系。

▲外间©阿奇

▲白空间前座椅©阿奇
同时,这个从木柜中“挖”出来的空间,为空间带来了明亮的基调,弱化了整屋木柜带来的沉闷感。

▲关闭的白空间©阿奇

▲看向里间©阿奇
童趣
LAN书店最为有趣的地方,当属儿童绘本区。最初,业主是希望为正在读小学的女儿创造一个能够愉快阅读的空间。

▲儿童绘本区轴测图©隅建筑

▲儿童绘本区©阿奇
儿童绘本区位于一个木质平台之上,脱离水磨石地面,区别于其他空间,形成一个独立的区域。在其西侧柜体中开发出一个儿童独属的小空间,小空间内全部采用白色饰面板,是白空间的延伸,并在其上设有一部小滑梯和四个洞口。

▲儿童绘本区©阿奇

▲滑梯空间©阿奇
靠近木平台的两个方洞,作为该空间出入口;西侧和北侧的洞口则作为小朋友观察外部世界的特殊窗口。

▲滑梯空间©阿奇
其中,西侧洞口通向吧台区,并能看到外间甚至外部园区;北侧洞口通向白空间,是一个藏在书柜中隐秘洞口。木平台、台阶、小滑梯,形成了一套多高度的空间系统,小朋友在其中可坐、可躺、可趴,很是惬意。

▲滑梯空间北侧小洞口©颜志伟

▲滑梯空间©阿奇
模数
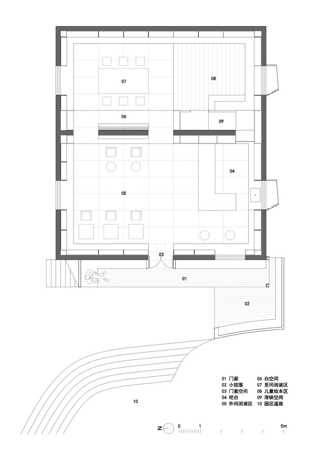
细心的顾客会发现,整个书店的地面,是由一套统一的模数控制着。通过局部调整柜体深度,将地面暴露部分控制在8.4米*9.6米的尺寸。

▲平面图©隅建筑
南北向以1.2米为模数,东西向以0.8米为模数,对整个室内空间进行划分。门洞、吧台、白空间以及木平台的位置及尺寸,均被纳入到此系统中,一切要素都井然有序。

▲看向外间©阿奇

▲吧台看向园区©阿奇
使用
正式营业后,从业主的反馈来看,书店能够“安静读书”的设计初衷基本实现。除了日常经营外,书店也会不定期举办一些小型公共活动,充分挖掘空间使用的可能性。

▲吧台储物柜©阿奇
绘本区则不出所料的成了小朋友们的最爱,在不干扰他人的前提下,阅读、玩耍可以在此同时进行。

▲滑梯空间©阿奇

▲阅读与玩耍©颜志伟
项目基本信息
项目名称:厦门集美LAN书店
项目类型:室内
项目地点:福建厦门集美集影视文创园内
建成状态:建成
设计时间:2022.01
建设时间:2022.05
建筑面积:100㎡
设计单位:隅建筑+东南乡建
主创建筑师:陈向鹏/隅建筑;张明珍/东南乡建
设计团队完整名单:李诗龄、杜巍威(驻场)、侯婷娟/隅建筑
业主:钟先生、尹女士
摄影师:阿奇、颜志伟
材料:实木、木饰面板、预制水磨石、防腐木、涂料
========================================================================================================================================


广州BarMine / 口口建筑[17P]


© 吴嗣铭
项目概述
BarMine位于深圳南山区某商业综合体首层,以向内探寻为设计初衷,倡导人们在高度信息化时代,为自我对话与深度社交保留更多时间与空间。饮酒行为具有强烈社交属性,酒吧是承载人际互动的核心场所。非正式交流、陌生人对话、偶然邂逅在酒精催化下被放大,人际边界被悄然打开,彼此得以探索、联结,建立独特情感关联。

▲沿街立面©吴嗣铭
设计理念
设计以矿场体验为核心概念,植入超尺度“巨石” 体量,塑造矿坑与甬道式空间尺度。通过空间序列转换,实现从明亮通透大空间到幽暗内敛小空间的过渡。
▲概念图©Atelier OO

▲剖透视©Atelier OO

▲日间主入口视角©何振中

▲夜间主入口视角©何振中
超尺度建构
第一层次为超尺度,以五块近5 米高的长方体实体模拟开采后的矿洞形态,相互紧邻形成狭缝,界定入口与虚空空间。日间如巨石阵般在阳光下投射巨大阴影,与常规餐饮酒吧形象形成反差;夜间缝隙透出光线,暗示内部活动,吸引探索与进入。“巨石” 内部开凿多处停留、久坐的壁龛与内室,形成强烈尺度对比,营造包裹感与舒适氛围。两组锯齿状壁龛环绕水平切割的主吧台,共同构成客座区;多元材质与丰富剖面关系,塑造典雅均衡的视觉体验。

▲层叠的入口体量©何振中

▲吧台与甬道©吴嗣铭

▲巨石的缺角开凿为吧台©吴嗣铭

▲巨石的间隙形成半户外空间©何振中
微尺度营造
第二层次为微尺度,通过视觉反差强化空间停留体验。在5 米高巨石上开凿一系列仅2米高的壁龛,站立时稍显低矮,入座后则获得独特包裹感。壁龛可作为卡座、吧台、派对区或卫生间,各壁龛之间采用不同材质,壁龛内部则呈现统一质感。在不同风格的矿洞之中游历与探索的体验,犹如包裹在不同矿石经切割后呈现出的丰富肌理之中。

▲凿开巨石的侧壁形成卡座区域©何振中

▲凿开巨石的侧壁形成卡座©何振中

▲每个卡座空间是一个内向的单元©吴嗣铭

▲以简单的几何形体切割巨石©吴嗣铭

▲处于尽端的环状洗手池©吴嗣铭
内向性空间
空间核心矗立体量最大的“巨石”,内部暗藏私密派对空间。其与外部迥异的剖面结构与声学设计,制造强烈空间冲突 —— 从舒缓松弛的爵士氛围,瞬时切换至节奏强烈的 Techno 节拍,在有限空间内完成完整感官体验。

▲派对房入口©吴嗣铭
▲派对房内部©吴嗣铭
项目图纸

▲平面图©Atelier OO
建筑设计:口口建筑
项目地点:广东广州
建成时间:2025.8
建筑面积:422平方米
完整项目信息:
项目名称:BarMine
项目类型:空间改造
项目地点:广东深圳市南山区嘉乐道L1-11+12铺
空间设计:口口建筑
设计团队:吴一飞,何振中,杨健,陈晓霖
建设时间:2025年
建筑面积:422平方米
摄影师:吴嗣铭,何振中
委托方:BarMine
1条评分金币+35
xgch 金币 +35 辛苦了,感谢您无私奉献的精神! 04-26
山庄提示: 道行不够,道券不够?---☆点此充值☆
 
在线jjybzxw

UID: 551814


发帖
245425
金币
890090
道行
2006
原创
2465
奖券
3580
斑龄
45
道券
1580
获奖
0
座驾
设备
摄影级
在线时间: 52246(小时)
注册时间: 2008-10-01
最后登录: 2026-04-30
只看该作者 沙发  发表于: 04-26
厦门集美 LAN 书店与广州 BarMine:空间设计的多元探索
一、厦门集美 LAN 书店:营造静谧阅读空间
(一)项目概况与业主诉求
厦门集美 LAN 书店坐落于集美集影视文创园内一栋两层建筑的首层。业主是一位爱书之人,其主要诉求是希望书店成为一个可以安静读书的地方,对设计并无太多限制。书店室内面积约 100 平米,平面基本为方形,这样的空间条件为设计提供了相对规整的基础。
(二)入口序列设计
1. 空间凸显与边界塑造
书店虽无需显眼招牌,但要从周边环境中凸显。设计将楼梯下方不便使用的部分用黑色钢板封住,主动塑造空间边界,摆脱消极感。同时,用防腐木将空间的顶部、底部包裹起来,使整个木色空间如同从周边环境中开辟出的私有领地。
例如,当人们从水泥地踏上木平台,脚底触感的转变、木板发出的吱呀声以及满眼的木色,都在提醒顾客即将进入新空间。这种设计手法巧妙地利用了材质和空间变化,引导顾客的感知。
2. 门廊功能转变
门廊不再仅仅是穿越性空间,而是具备明确空间特性的场所。配上休息座椅后,它成为书店室内与园区的高效缓冲地带。顾客既可以在此休息,也可直接进入书店,增加了空间的灵活性和实用性。
3. 门洞空间设计
进入书店需穿越一个 1.2 米 *1.2 米的门洞空间。该空间外部采用防腐木贴面,内部镶嵌卡斯拉实木,地面铺设 9 块闽南红砖。这种设计既是对所在地建筑文化的回应,又提醒顾客空间将再次发生转变。不同材质的运用和红砖的点缀,增添了空间的文化氛围和层次感。
(三)氛围与材料运用
1. 空间划分与功能布局
承重墙将书店划分为外间和里间,两根中央的梁将空间细分为四个象限。外间南侧为吧台区,北侧为阅读区,外间阅读区具备一定公共属性,撤去桌椅后可举办公共活动。里间南侧为儿童绘本区,北侧为阅读区,设有一张大书桌,可安静阅读或举行小型活动。
这种布局充分考虑了不同人群的需求和使用场景,使空间功能更加多元化。
2. 材料质感与空间气质
室内墙面以卡斯拉实木为主材,辅以色调相近的饰面板,木材的质感确定了空间安定、柔和的气质。在 2.8 米以下墙体,用木材制作水平展开的柜体空间,由基座、书架、顶板构成独立次级空间,人们坐于基座之上可获得与大空间适当脱离的安定感。
2.8 米以上空间采用灰色质感材料喷涂,较深的色调与两根贯穿房间的大梁为室内空间增添了一份厚重感。地面与吧台均采用灰色预制水磨石,色调与上部涂料相近,共同形成水平延展的体验感。不同材料和色彩的搭配,营造出丰富而有层次的空间氛围。
(四)“白空间”设计
1. 弱化承重墙影响
为了弱化承重墙给室内空间带来的割裂感,设计在外间与里间交接处引入“白空间”。该空间以承重墙为展示核心,采用白色饰面板包裹,两侧设置门洞和书架,将阻隔的墙体转化为具备功能的流动空间,极大弱化了承重墙的存在感,加强了外间与里间的联系。
2. 明亮基调与空间调节
“白空间”为空间带来了明亮的基调,弱化了整屋木柜带来的沉闷感。这种设计手法通过色彩和空间的调整,优化了室内空间的视觉效果和氛围。
(五)童趣设计——儿童绘本区
1. 独立区域营造
儿童绘本区位于木质平台之上,脱离水磨石地面,形成一个独立的区域。在其西侧柜体中开发出儿童独属的小空间,全部采用白色饰面板,是白空间的延伸,并设有一部小滑梯和四个洞口。
2. 多高度空间系统
靠近木平台的两个方洞作为空间出入口,西侧和北侧的洞口作为小朋友观察外部世界的特殊窗口。木平台、台阶、小滑梯形成了一套多高度的空间系统,小朋友在其中可坐、可躺、可趴,满足了儿童活泼好动的天性。
(六)模数控制与空间秩序
整个书店的地面由一套统一的模数控制着,南北向以 1.2 米为模数,东西向以 0.8 米为模数,对整个室内空间进行划分。门洞、吧台、白空间以及木平台的位置及尺寸均被纳入到此系统中,使一切要素都井然有序,体现了设计的严谨性和逻辑性。
(七)使用反馈与空间价值
正式营业后,书店基本实现了“安静读书”的设计初衷。除了日常经营,还会不定期举办一些小型公共活动,充分挖掘了空间使用的可能性。绘本区成为小朋友们的最爱,阅读与玩耍可以同时进行,体现了空间设计的成功和对用户需求的精准把握。
二、广州 BarMine:打造独特酒吧社交空间
(一)项目概述与设计初衷
BarMine 位于深圳南山区某商业综合体首层。设计以向内探寻为初衷,倡导在高度信息化时代为自我对话与深度社交保留更多时间与空间。饮酒行为具有强烈社交属性,酒吧是承载人际互动的核心场所,该设计旨在通过空间营造促进非正式交流、陌生人对话和偶然邂逅。
(二)设计理念——矿场体验核心概念
设计以矿场体验为核心概念,植入超尺度“巨石”体量,塑造矿坑与甬道式空间尺度,通过空间序列转换实现从明亮通透大空间到幽暗内敛小空间的过渡。这种独特的设计理念为酒吧赋予了与众不同的氛围和体验。
(三)超尺度建构
1. 入口空间塑造
以五块近 5 米高的长方体实体模拟开采后的矿洞形态,相互紧邻形成狭缝,界定入口与虚空空间。日间如巨石阵般在阳光下投射巨大阴影,与常规餐饮酒吧形象形成反差;夜间缝隙透出光线,暗示内部活动,吸引探索与进入。
例如,这种独特的设计在白天和夜晚呈现出不同的视觉效果,增加了空间的吸引力和神秘感。
2. 内部空间营造
“巨石”内部开凿多处停留、久坐的壁龛与内室,形成强烈尺度对比,营造包裹感与舒适氛围。两组锯齿状壁龛环绕水平切割的主吧台,共同构成客座区;多元材质与丰富剖面关系,塑造典雅均衡的视觉体验。
不同尺度的空间组合和材质运用,使顾客在酒吧内感受到丰富的空间层次和独特的氛围。
(四)微尺度营造
1. 视觉反差与空间体验
在 5 米高巨石上开凿一系列仅 2 米高的壁龛,站立时稍显低矮,入座后则获得独特包裹感。壁龛可作为卡座、吧台、派对区或卫生间,各壁龛之间采用不同材质,壁龛内部则呈现统一质感。
这种微尺度的设计通过视觉反差强化了空间停留体验,让顾客在不同风格的矿洞之中游历与探索,犹如包裹在不同矿石经切割后呈现出的丰富肌理之中。
2. 细节设计与材质运用
例如,处于尽端的环状洗手池等细节设计,以及不同材质在壁龛之间的运用,都体现了设计的精致和对顾客体验的关注。
(五)内向性空间
1. 私密派对空间设置
空间核心矗立体量最大的“巨石”,内部暗藏私密派对空间。其与外部迥异的剖面结构与声学设计,制造强烈空间冲突。
2. 感官体验切换
从舒缓松弛的爵士氛围,瞬时切换至节奏强烈的 Techno 节拍,在有限空间内完成完整感官体验。这种设计满足了不同顾客对于社交和娱乐的需求,增加了酒吧的趣味性和吸引力。
三、两个项目的对比与启示
(一)空间功能差异
厦门集美 LAN 书店主要功能是提供安静的阅读空间,同时兼顾小型公共活动和儿童阅读玩耍需求;而广州 BarMine 则是一个以社交和娱乐为核心的酒吧空间,通过独特的空间设计促进人际互动和自我对话。
(二)设计手法对比
1. 材料运用
LAN 书店主要运用实木、木饰面板、预制水磨石等材料,营造出安定、柔和、厚重的空间氛围;BarMine 则通过模拟矿场的“巨石”体量,运用多元材质塑造出独特、神秘、富有层次感的空间效果。
2. 空间尺度
LAN 书店注重空间的规整和秩序,通过模数控制使空间要素井然有序;BarMine 则采用超尺度和微尺度相结合的手法,创造出强烈的视觉反差和独特的空间体验。
(三)对不同类型空间设计的启示
1. 功能性空间设计
对于功能性空间如书店,设计应围绕其主要功能展开,同时考虑不同用户群体的需求,通过合理的空间划分和材料运用营造出舒适、宜人的环境。
2. 社交性空间设计
对于社交性空间如酒吧,设计可以通过独特的概念和创意手法,打造出具有吸引力和话题性的空间,促进人际交流和互动,满足人们在信息化时代对于深度社交的需求。

厦门集美 LAN 书店和广州 BarMine 分别在阅读空间和酒吧空间设计方面进行了独特的探索和实践。它们通过不同的设计理念、材料运用和空间尺度处理,为不同功能的空间营造出了独特的氛围和体验,为今后的空间设计提供了有益的参考和启示。
1条评分金币+6
xgch 金币 +6 回复认真,加分鼓励 04-26
如何不发帖就快速得到金币道行
 
在线姜谷粉丝

UID: 1569053

精华: 2
级别: 玉清道君

发帖
181510
金币
624913
道行
20030
原创
769
奖券
471
斑龄
0
道券
30
获奖
0
座驾
设备
摄影级
在线时间: 22894(小时)
注册时间: 2012-06-21
最后登录: 2026-04-30
只看该作者 板凳  发表于: 04-26
一、厦门集美书店空间设计概况
厦门集美区有多家特色书店,但关于"LAN书店"的具体设计信息较少。以下是集美区其他知名书店的设计特点可供参考:

1. MUSHROOM 蘑菇书店
位置:集美区石鼓路3号(龙舟池旁)
设计特色:
外观装潢洋气,仿佛置身异国小镇
屋内贴满红砖,风格独特
与嘉庚建筑理念相契合
功能定位:不仅是书店,还举办图书沙龙、独立电影放映、诗歌交流、音乐派对等活动
2. 新华书店(集美大学店)
位置:集美大学明月楼
设计亮点:
3米多高原木书架
汉字浮雕图案大圆柱
台阶上随意摆放蒲团
书墨与咖啡混合的香气氛围
3. 港头公益图书馆
位置:集美后溪港头
设计特色:
玻璃木屋24㎡+户外阅读空间50㎡
一楼配套咖啡馆及老房子茶室
为村民、大学生及城里人提供文化交流空间
二、广州BarMine相关信息
关于"BarMine"的具体设计信息在搜索结果中未能找到确切匹配。不过,广州在酒吧、商业空间设计方面有诸多优秀案例,建议你可以:

提供更多背景信息:BarMine的具体位置、开业时间等
参考类似空间:广州白鹅潭、琶洲等区域的商业空间设计案例
三、空间设计趋势对比
维度    厦门集美书店    广州商业空间
文化定位    在地文化+阅读社群    岭南文化+现代生活
空间功能    阅读+活动+社交    商务+休闲+艺术
设计元素    原木、红砖、嘉庚风格    骑楼、玻璃幕墙、艺术装置
用户体验    静谧阅读、人文交流    高端社交、视觉体验
温馨提示:如果你需要更具体的"LAN书店"或"BarMine"设计案例,建议:

提供项目的具体地址或设计师信息
关注相关设计机构的官方账号
参考专业设计网站如3D溜溜网、谷德设计网等
1条评分金币+6
xgch 金币 +6 回复认真,加分鼓励 04-26
如何不发帖就快速得到金币道行
 
我有我可以
快速回复
限120 字节
认真回复加分,灌水扣分~
 
上一个 下一个