切换到宽版
  • 12阅读
  • 2回复

[奇观]吉林多乐精品酒店 / 回响建筑设计//新西兰壹电信体育场 / POPULOUS[52P] [复制链接]

上一主题 下一主题
在线jjybzxw

UID: 551814

 

发帖
245425
金币
890090
道行
2006
原创
2465
奖券
3580
斑龄
45
道券
1580
获奖
0
座驾
设备
摄影级
在线时间: 52246(小时)
注册时间: 2008-10-01
最后登录: 2026-04-30
只看楼主 倒序阅读 楼主  发表于: 昨天 10:37
— 本帖被 xgch 执行加亮操作(2026-04-30) —
吉林多乐精品酒店 / 回响建筑设计[37P]


当亲子度假不再被卡通包围
七八岁的孩子,心里还住着卡通,但已经开始渴望一点属于自己的角落。而到了九岁、十岁,米老鼠就不再是睡前唯一的陪伴了——他们想要的,是一点不被当成小宝宝的体面。而陪在一旁的父母,同样渴望在旅途中喘一口气——不必时刻盯着、陪着、哄着,能安心喝杯咖啡,听一首老歌。多乐酒店的出现,正是因为看见了这些没说出口的需求。



01.
告别低幼,是对成长的尊重
主流亲子酒店似乎还停留在同一个模板里:满墙卡通、高饱和色块、到处是滑梯和海洋球。热闹是热闹,可七八岁往上的孩子走进这样的房间,常常愣一下——那是“这好像不是为我准备的”沉默。他们需要的不再是鲜艳的视觉轰炸,而是一个可以安静看书、自在走动、甚至发一会儿呆的角落。父母想要的,也不只是一个儿童乐园,而是一段真正能被放松的假期。多乐的起点,就从这一份“重新思考”开始。


02.
成长、陪伴、休憩,缺一不可
这个空间的关键词有三个:成长、陪伴、休憩。成长,意味着设计不必幼稚。大孩子的审美已经悄悄成形,他们能分辨什么是“可爱”什么是“无聊”。陪伴,是孩子和父母都能被照顾到——彼此靠近,却不互相打扰。休憩,是回归度假的本质:慢下来,松下来,而不是换一个地方继续忙碌。多乐的空间里,没有喧闹的游乐场式背景音,没有为了填满而填满的设施。它更适合大家庭结伴出行,也适合三五好友带着孩子一起小住。尺度、布局、公共区域,都在说同一句话:共处不拥挤,松弛有边界。




03.
色彩不必吵闹,安静自有力量
很多亲子空间迷信鲜艳。好像颜色越多、越跳,孩子就越喜欢。但真正适合成长的空间,恰恰是不必张扬的那种。多乐的底色,是一层浅浅的桦木海洋板,带着天然的木纹与温润的触感,不刺眼,不争抢,人一走进去,心就静了一半。地面则使用烟熏橡木,沉稳的灰调把整个空间的气质稳住,既不过分活泼,也不显得沉闷。两种木色彼此应和,仿佛孩子的成长——既有向阳的热烈,也有向内生长的沉静。色彩在这里不是装饰,是情绪的容器。


04.
材质是肌肤,空间因而有了温度


在多乐,桦木海洋板不只是材料,更是对孩子和父母的一种体贴。它环保、无害,摸上去温润不冰手,孩子可以光着脚跑来跑去,可以随意倚靠,不用担心磕碰,也不用担心看不见的挥发物。它不过分幼稚,也不显老气,既能陪五六岁的孩子搭积木,也能和十几岁的少年一起安静地读一本书。好的材质不必惊艳第一眼,但它会在日复一日的使用中,慢慢透出耐看的底气。


05.
让家长也能坐下来,喝一杯



传统的亲子酒店,常常忘了家长。公共区域塞满了儿童设施,餐厅里到处是婴儿椅,大堂堆着玩具。父母蹲在孩子身边,或者缩在角落刷手机。那不是度假,那是换了一个更累的地方带孩子。多乐的一层公共区则呈现另一种气氛:接待区、休闲吧台、儿童活动区,三者融在一起,又彼此独立。孩子在视线可及的安全区域里玩耍,有适龄的设施,也有专业人员的看护。而父母可以在一旁坐下来,点一杯喝的,听一段轻音乐,真正松一口气。度假的意义,从来不是单方面的看护。孩子快乐,大人放松,这才是两全的事。



06.
树屋滑梯,不是符号,是本能

多乐的亲子房里,没有卡通墙纸,没有五颜六色的塑料城堡。取而代之的,是一座树屋滑梯。为什么?因为七八岁的孩子,骨子里渴望攀爬、探索、冒险。滑梯不是为了好看,是为了唤醒这种本能。它不在墙上,不只是一个图案,它是可以爬上去、滑下来、藏进去的真实空间。房间里还留出了足够大的活动区和收纳区。大孩子的行李不少——书本、玩具、滑雪装备、游泳用品。他们需要的不仅是一张床,更是一个可以“安顿自己”的小世界。把孩子当作正在长大的独立个体去对待,空间自然会给他们尊重与自由。





07.
设计是对生活方式的理解
多乐不做卡通不堆颜色,用长白山的桦木海洋板和深色地板把空间沉下来。环保的材质让孩子光脚跑都放心,安静的氛围让父母坐下来喝一杯。长白山的冬天冷,室内就用暖色的木头和深色的地面,人一进来就静下来了。本地感不是贴上去的标签,是材料怎么用、空间怎么分,都从这片土地和住进来的人身上长出来。




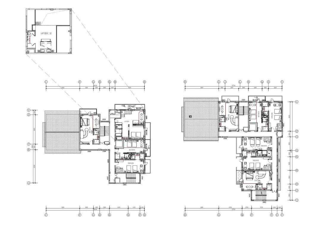
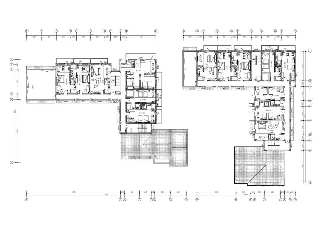
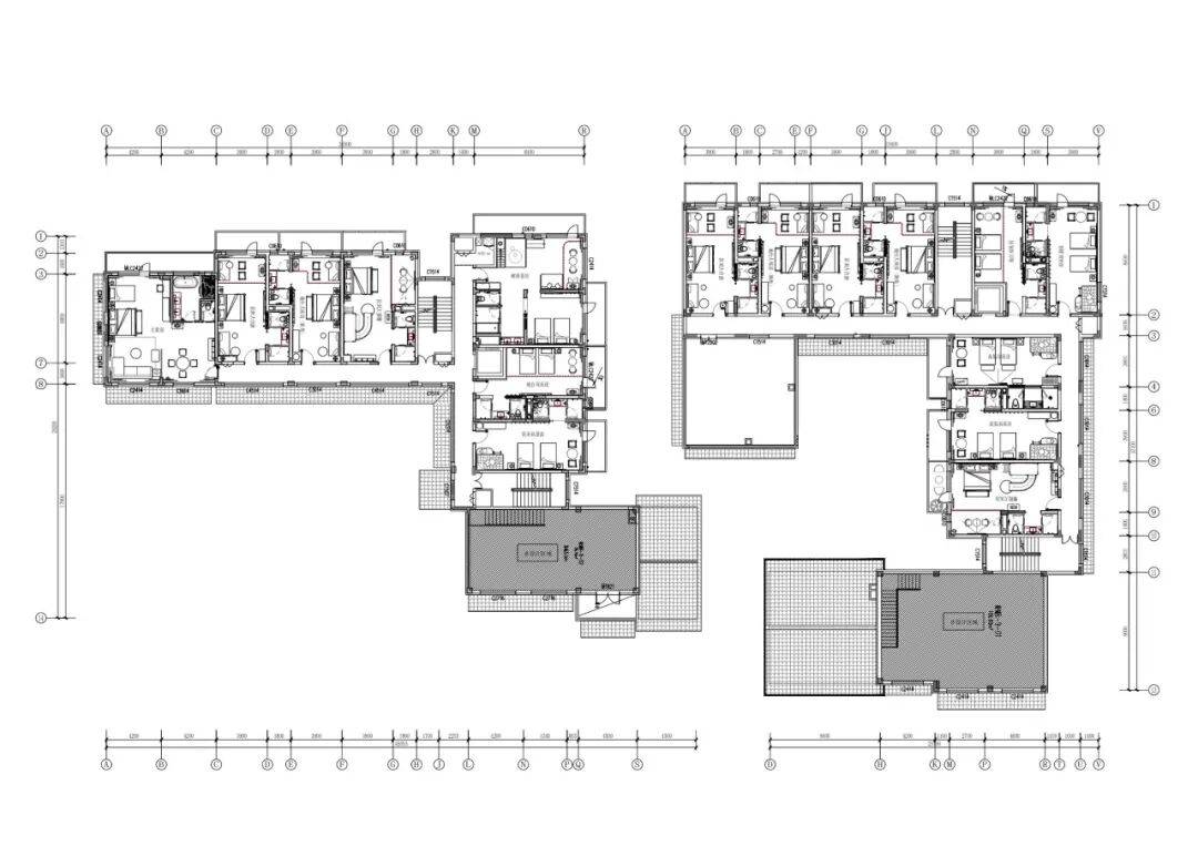
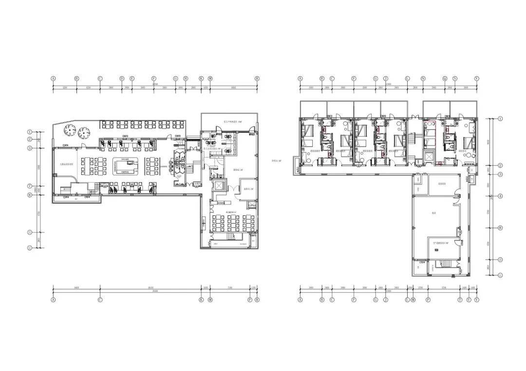
项目图纸

01-1F平面布置图

02-1F平面布置图

2F平面布置图

3F平面布置图

4F平面布置图
项目基本信息
项目名称:多乐精品酒店
项目类型:精品酒店/商业空间设计
设计方:回响(上海)建筑设计有限公司
完成年份:25年11月
设计团队:贺建、杨宁、李东
酒店筹开团队:成都雅之灿炀文化传播有限公司
项目地址:吉林省延边朝鲜族自治州安图县
建筑面积:5000㎡
摄影版权:李牧严
客户:多乐精品酒店
材料:锈蚀耐候钢、北美山纹胡桃木、黑胡桃木拼花地板、桦木海洋板、烟熏柞木地板、仿莱姆石瓷砖、凯撒灰大理石、水磨石、椰棕榻榻米垫、尼龙菠萝圈纹地毯、环保艺术涂料
========================================================================================================================================


新西兰壹电信体育场 / POPULOUS[15P]


远眺新西兰壹电信体育场_POPULOUS
3月27日,一个阴雨绵绵的周五早晨,基督城(Christchurch)市长菲尔·莫格(Phil Mauger)和新西兰总理克里斯托弗·卢克森(Christopher Luxon)共同主持了新西兰壹电信体育场(One New Zealand Stadium)的开幕仪式。
全球顶尖的体育和娱乐建筑设计公司POPULOUS(博普乐思)和WAM建筑事务所联手设计打造了这座耗资6.83亿新西兰元的体育场馆,并凭借其在全球体育场馆设计领域的丰富经验,确保了这座体育场能够为球迷带来媲美世界上任何其他顶级场馆的观赛体验。承包商BESIX Watpacz负责了这座世界级体育场的建设工作。
莫格表示:“基督城现在发展势头强劲,而坐落在蒂卡哈(Te Kaha)的这个体育场项目在城市重建的漫长历程中发挥了重要作用。我很高兴这一天终于到来,我们得以见证这座宏伟体育场的落成。”

开幕仪式_POPULOUS
基督城(又译:克赖斯特彻奇)是新西兰南岛最大的城市,也是新西兰第二大城市,享有“花园之城”的美誉。2011年2月22日,该市发生了6.3级地震——由于此次地震震级大、震源深度较浅,且震中位于市中心,所以对当地造成了巨大破坏。
作为2011年地震后基督城重建的最后一块拼图,新西兰壹电信体育场是一座真正的多功能场馆,旨在最大限度地满足全年各种活动的需求,从体育赛事到大型演唱会,应有尽有。

新西兰壹电信体育场被誉为“基督城重建的最后一块拼图”_POPULOUS
POPULOUS高级董事、高级建筑师乔什·罗布森(Josh Robson)表示,POPULOUS和WAM的设计团队采用了以性能为导向的设计方法,并与建筑科学家和工程师紧密合作,最大限度地提升了体育场的多功能适应性。
01.
基于科学的性能设计方法
基督城位于两条活跃的地震断层——基督城断层和港口山断层附近。因此,体育场的设计必须确保其在施工期间和竣工后都能抵御地震活动。这意味着需要采用多种临时和永久性的抗震技术。
整个设计都贯穿着基于科学的性能设计方法,以确保其完全适应多种用途。POPULOUS运用光合有效辐射(PAR)分析来研究光线进入情况,运用流体动力学来评估空气流动,运用声学模型来研究混响和衰减,并运用人群流动模型来最大限度地减少观众入场时间——每一层分析都为打造卓越流畅的体验做出了贡献。

体育场的整个设计都基于科学并以人为本_POPULOUS
新西兰壹电信体育场的空间规划以人为本,注重打造人们相聚、交流和庆祝的空间,使其不仅仅是一座体育和娱乐场馆,更是一个汇聚人群的目的地。体育场内设有2.5万个固定座位,在需要时还可再增加5千个临时座位,最多可容纳超过3.7万名观众观看演唱会。同时,它可以轻松调整为小型活动模式,具备举办各类体育比赛和文化活动的灵活性。该场馆也是基督城市议会主持的迄今为止规模最大的建设项目。
02.
风雨从来都不是问题
为了进一步提升活动日的体验,POPULOUS的建筑师在设计看台时充分考虑了营造氛围,让观众能够近距离感受体育赛事和大型演唱会的精彩。此外,建筑师们还优先考虑了观众的舒适度,设计了一座永久性的固定屋顶,使体育场能够全年使用,不受天气条件的影响。


体育场拥有一座永久性的固定屋顶_POPULOUS
通常情况下,固定屋顶意味着场内需要铺设人造草皮。然而,由于POPULOUS曾设计了世界上第一座拥有天然草皮和永久性固定屋顶的专业体育场——位于新西兰达尼丁(Dunedin)的福赛斯·巴尔体育场 (Forsyth Barr Stadium),因此他们能够将这一经验运用到本项目中,让一切变得不同寻常。

福赛斯·巴尔体育场 _POPULOUS
“这些成功经验被应用于新西兰壹电信体育场的设计中。其固定屋顶采用轻质结构,并结合透明的ETFE膜,经过精确校准,可提供最佳自然光,以维持屋顶下方草皮的生长,同时营造明亮、防风雨的环境,提升场馆内的每一刻体验。”罗布森说道。
先进的屋顶材料使天然草皮能够全年沐浴阳光。POPULOUS与Mott MacDonald公司合作,利用计算机建模确保充足的光照,促进草皮健康生长。这一点对于体育场的北侧看台尤为重要,因为在冬季,体育场北侧很难最大限度地利用阳光。

体育场内的天然草皮_POPULOUS
体育场管理公司Venues Ōtautahi的首席执行官卡罗琳·哈维-蒂尔(Caroline Harvie-Teare)表示:“拥有屋顶真的是太棒了——它让我们能够真正地在全年举办各种丰富多样的活动。所以,尽管今天的开幕仪式遭遇风雨侵袭,却反而更凸显了屋顶的优势。”
03.
与土地建立文化联系
基督城是新西兰的橄榄球之都,这项运动是这座城市文化的重要组成部分。因此,2011年地震后,原体育场的关闭不仅在物质层面,也在文化层面给社区留下了空白。
新体育场的设计任务书中最重要的一点就是确保与土地建立文化联系。虽然体育场的正式名称是新西兰壹电信体育场,但其下方的土地将保留“蒂卡哈”之名(为毛利语Te Kaharoa的缩写,意为“坚韧的力量”)——这个名字由纳伊图阿胡里里部落(Ngāi Tūāhuriri)赠予,既体现了该地区丰富的历史,也预示着它的未来。

体育场以“蒂卡哈”之名延续了与土地的文化联系_POPULOUS
体育场的设计融合了毛利文化元素和摩根·达利森(Morgan Darlison)创作的视觉艺术作品,其灵感源自毛利创世神话中的森林之神(Tāne)将天空之父(Ranginui)与大地之母(Papātūānuku)分开,带来了光明(Te Ao Mārama)和人类世界的诞生。
体育场的外立面则采用独特的钢结构,长达800米,其设计反映了坎特伯雷地区(Canterbury)的景色,包括标志性的拉凯豪图班克斯半岛(Te Pātaka o Rākaihautū Banks Peninsula)、港口山(Port Hills)和南阿尔卑斯山脉(Southern Alps)。这种设计在体育场与其周围环境之间建立了视觉联系。无论游客从外部哪个角度观看这座建筑,外立面都会映照出其后的景色。

体育场的外立面钢结构_POPULOUS
在体育场内部,观众席采用了独一无二的科怀怀(kowhaiwhai)图案,其灵感来自锤头鲨(mangōpare),象征着力量、坚韧、速度与敏捷,旨在激励使用该体育场的艺人和运动员。

观众席的设计采用了科怀怀图案_POPULOUS
04.
重塑赛事体验
宾客体验是新西兰壹电信体育场的核心。POPULOUS亚太区总监、高级董事克里斯·帕特森(Chris Paterson)表示,场馆的设计旨在打造包容、便捷、舒适的环境,提供一流的餐饮服务、行业领先的座椅设计以及各种空间,以促进社交聚会和人际交往。



体育场内的各种空间设计_POPULOUS
“我们的团队设计了一座灵活的多功能场馆,坐落于繁华的城市中心地带,旨在为本地居民提供举办难忘活动和重要庆典的场所。”帕特森补充道。
“它远不止是一座体育场,更是一个创造集体记忆、分享胜利、颂扬文艺、凝聚社区力量的地方。作为城市重建的最后一个核心项目,我们设计的这座体育场体现了韧性和复兴的精神,成为该地区实力和乐观精神的实体象征。”
“通过汇聚人群,它强化了人与场馆之间持久的联系,并确保这座体育场不仅属于这座城市,更属于它的人民。”

新西兰壹电信体育场是基督城实力和乐观精神的实体象征 _POPULOUS
体育场周围的公共区域包括球迷区和社区活动空间,旨在促进与当地社区的互动,并鼓励人们全年到访,而不仅仅是在举办大型赛事时。体育场也为当地企业提供了发展契机,促成了各种合作与伙伴关系,充分展现坎特伯雷地区最优质的美食和文化。
在开幕后的一个月里,新西兰壹电信体育场将继续进行系统检查、草皮养护和员工培训,为首场赛事——2026年4月24-26日举行的超级橄榄球太平洋赛区超级轮比赛(Super Rugby Pacific’s Super Round)做准备。
项目信息
项目名称:位于蒂卡哈的新西兰壹电信体育场(One New Zealand Stadium at Te Kaha)
项目类型:体育建筑
项目位置:新西兰基督城(克赖斯特彻奇)
占地面积:6公顷(15英亩)
竣工时间:2026年3月
项目业主:基督城市议会
设计公司:POPULOUS(博普乐思)
合作单位:Warren and Mahoney, Mott MacDonald
施工单位:BESIX Watpacz
运营单位:Venues Ōtautahi
工作内容:建筑设计、导视设计
团队成员:Chris Paterson, Joshua Robson, Andrew Rieper, Chris Hutchison, Daniel Bartlett, Ben Stacey, Sean Chidgey, Sophie Hogben, Karen Halagao, Nathan Tobeck, Daniel Joseph, Sebastian Chu
1条评分金币+35
xgch 金币 +35 辛苦了,感谢您无私奉献的精神! 昨天 23:02
山庄提示: 道行不够,道券不够?---☆点此充值☆
 
在线姜谷粉丝

UID: 1569053

精华: 2
级别: 玉清道君

发帖
181510
金币
624913
道行
20030
原创
769
奖券
471
斑龄
0
道券
30
获奖
0
座驾
设备
摄影级
在线时间: 22894(小时)
注册时间: 2012-06-21
最后登录: 2026-04-30
只看该作者 沙发  发表于: 昨天 11:56
一、吉林多乐精品酒店
根据搜索结果,该酒店全称为长白山保护开发区不咸山酒店管理有限公司多乐精品酒店,位于长白山恩都里地区,与乐沐汤邸温泉酒店、兰普设计酒店相邻 。酒店定位为精品度假酒店,提供住宿、餐饮等服务,目前正在招聘前厅经理,要求具备高端酒店运营经验 。

如需预订,可通过以下链接查询实时房型与价格:

二、新西兰壹电信体育场(One New Zealand Stadium)
该体育场位于新西兰基督城,由全球顶尖场馆设计公司**POPULOUS(博普乐思)**负责设计,预计2026年正式启用,冠名权由新西兰电信公司One New Zealand获得,合作期限为10年(2026-2036年)

体育场总投资6.83亿纽币,可容纳36000人,将承办音乐会、体育赛事及企业活动等,旨在打造南岛地标性场馆。其设计延续了POPULOUS在体育建筑领域的创新理念,融合功能性与地域文化特色
1条评分金币+6
xgch 金币 +6 回复认真,加分鼓励 昨天 23:02
如何不发帖就快速得到金币道行
 
我有我可以

UID: 2158359

发帖
1834
金币
355
道行
100
原创
2
奖券
20
斑龄
0
道券
0
获奖
0
座驾
设备
摄影级
在线时间: 605(小时)
注册时间: 2023-03-04
最后登录: 2026-04-30
只看该作者 板凳  发表于: 昨天 22:37
吉林多乐精品酒店‌是由回响建筑设计的亲子友好型精品酒店,注重儿童成长与家庭休憩的平衡;‌新西兰壹电信体育场‌(One New Zealand Stadium)由POPULOUS设计,是基督城重建的标志性多功能场馆,于2026年3月27日正式启用。

一、吉林多乐精品酒店:为“正在长大的孩子”设计的空间
设计理念‌:告别传统亲子酒店的卡通化、低龄化风格,尊重七八岁以上孩子的审美与独立需求,同时为父母提供真正放松的环境。
空间关键词‌:‌成长、陪伴、休憩‌
不设海洋球与滑梯堆砌的儿童乐园,转而打造可安静阅读、发呆、玩耍的多元角落;
公共区域划分接待区、休闲吧台与儿童活动区,实现“孩子在视线内玩耍,父母安心喝咖啡”的理想状态。
材质与色彩‌:
主材采用‌长白山桦木海洋板‌与‌烟熏橡木地板‌,色调温润沉静,营造自然疗愈感;
色彩克制,避免高饱和度视觉轰炸,强调“安静自有力量”的空间情绪。
特色设计‌:
房间内设‌真实可攀爬的树屋滑梯‌,满足孩子探索与冒险的本能;
留足收纳与活动空间,适配滑雪、游泳等户外家庭出行需求。
项目信息‌:位于吉林省延边州安图县,建筑面积5000㎡,2025年11月完成设计。
二、新西兰壹电信体育场:基督城重建的“最后一块拼图”
基本概况‌:
原名‌Te Kaha Stadium‌,中文译名“新西兰壹电信体育场”,2026年3月27日由总理克里斯托弗·卢克森与基督城市长菲尔·莫格共同揭幕。
总投资‌6.83亿新西兰元‌,由基督城市议会与新西兰政府共同出资,是2011年地震后城市重建的收官之作。
功能定位‌:
多功能体育娱乐场馆,可容纳‌30,000名观众‌(体育赛事),大型演唱会时可扩容至‌36,000人以上‌;
旨在吸引国际级体育赛事与文化演出,重振基督城作为南岛文化中心的地位。
设计亮点‌:
由全球顶尖体育建筑公司‌POPULOUS‌(博普乐思)与WAM建筑事务所联合设计,采用“用户动线优先”理念;
运用‌光合有效辐射分析‌、‌声学模型‌与‌人群流动模拟‌,优化观赛体验与安全疏散效率;
场馆名称“Te Kaha”在毛利语中意为“力量”,象征坎特伯雷地区的坚韧与重生。
可持续性‌:结构设计充分考虑地震带风险,集成多种抗震技术,确保长期安全使用。
1条评分金币+6
xgch 金币 +6 回复认真,加分鼓励 昨天 23:03
如何不发帖就快速得到金币道行
 
快速回复
限120 字节
认真回复加分,灌水扣分~
 
上一个 下一个