查看完整版本: [-- 辽宁泰达园 / 光合作用设计事务所[45P] --]

武当休闲山庄 -> 无奇不有 -> 辽宁泰达园 / 光合作用设计事务所[45P] [打印本页] 登录 -> 注册 -> 回复主题 -> 发表主题

jjybzxw 2025-12-06 09:34


“空间并非空无;它是我们存在的场域,
是我们感知自我与世界关系的媒介。”
尤哈尼·帕拉斯玛

本项目位于辽宁,是一处私人住宅。设计以素净的白与雅致的灰为基底,以温润的木色勾勒其间,共同构建出一个质感卓然、静谧闲适的生活场域。此处远非仅供栖身的物理容器,更是居住者精神世界向现实维度的投射与延伸,是情感与陪伴的温柔载体。方寸之间,每一处流转的光影与无言的岁月痕迹,都在悄然书写着与至亲 共度的时光叙事诗。
项目视频 GuangHe Design ©摄影: 图派视觉

GuangHe Design ©摄影: 图派视觉

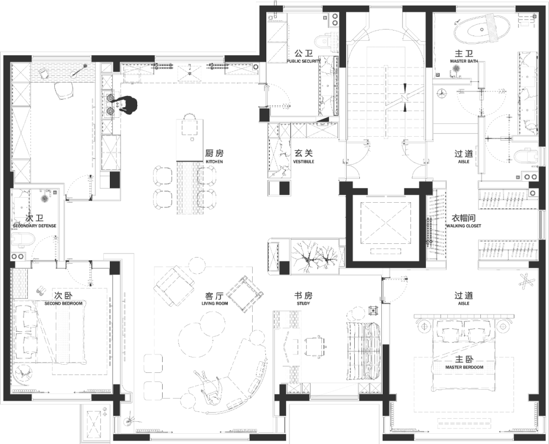
平面布置图 ©GuangHe Design
玄关|生活的序章,归家的仪式
玄关,不止是空间的过渡,更是心境的转换。它作为家的“阈界”,以低调而温厚的姿态,静默地完成由外至内的叙事转折。
一侧是整装待发的从容,木作系统与隐藏式收纳将功能隐于形式之后,勾勒出简净的立面;另一侧,或许是一方洞石端景,或是一盏微光壁灯,在有限尺度内营造出无限的意境。晨起离家,它是整理仪容、积蓄力量的起点;暮色归来,第一缕暖光、最熟悉的气息,在此悄然卸下世界的纷扰。
每一次推门而入的停顿,都是归心的仪式。光影在材质肌理上漫游,时间仿佛在此放缓。它不张扬,却以细致的关怀,承载钥匙轻响、行囊落地的日常片刻,让每一次出发与回归,

GuangHe Design ©摄影: 图派视觉

GuangHe Design ©摄影: 图派视觉

GuangHe Design ©摄影: 图派视觉

GuangHe Design ©摄影: 图派视觉

GuangHe Design ©摄影: 图派视觉

GuangHe Design ©摄影: 图派视觉

GuangHe Design ©摄影: 图派视觉
客厅|目之所及,皆是温暖
晨光漫过纱帘,轻落于木质壁纸之上,温厚的肌理在光中舒展。沙发以柔软的质感与细腻的纹理,成为空间温柔的锚点。一旁的龟背竹在光影间悄然苏醒,宽展的叶片与墙上的挂画、几上的摆饰轻声对话,勾勒出日常中不动声色的诗意。
当器物之美回归生活,最动人的风景,原来始终在身边。

GuangHe Design ©摄影: 图派视觉

GuangHe Design ©摄影: 图派视觉

GuangHe Design ©摄影: 图派视觉

GuangHe Design ©摄影: 图派视觉

GuangHe Design ©摄影: 图派视觉

GuangHe Design ©摄影: 图派视觉

GuangHe Design ©摄影: 图派视觉
餐厅|人间至味,最是清欢
餐厅与厨房以全开放式布局融为一体,摒弃冗余隔断,仅以必要器物作为空间的点缀。功能与情感在此自由流动,烹饪与社交被巧妙纳入同一视觉序列,既保持了空间的开放通透,亦不失居家的包裹感。
白色岛台与哑光黑餐桌对比鲜明,又彼此呼应。周末午后,咖啡香气缭绕其间,掠过围坐谈笑的好友,漫向客厅中亲子嬉戏的窗前——生活的烟火与仪式,在此刻温柔交织。

GuangHe Design ©摄影: 图派视觉

GuangHe Design ©摄影: 图派视觉

GuangHe Design ©摄影: 图派视觉

GuangHe Design ©摄影: 图派视觉
书房|内外之间的澄明之境
书房,是家中一处微妙的中介地带。它既非全然公共,也非绝对私密,而是喧嚣与宁静、外放与内省之间的从容过渡。如同一个精神的缓冲地带,让居者在思维的奔放与沉潜之间自由往来。
空间以简净的线条与沉稳的木色铺陈,书柜整齐列阵,既是知识的藏馆,也是空间的结构骨架。一桌一椅,临窗而设,接纳着天光云影的流转,也安放着伏案时深邃的专注。
推门而入,便从生活的喧响步入思想的旷野;掩上门扉,又可与一室藏品、半窗清晖为伴,在独处中汲取力量。它是家中一座孤岛,也是连接更广阔世界的港口,见证着灵感与平和的交替共生。

GuangHe Design ©摄影: 图派视觉

GuangHe Design ©摄影: 图派视觉

GuangHe Design ©摄影: 图派视觉

GuangHe Design ©摄影: 图派视觉

GuangHe Design ©摄影: 图派视觉

GuangHe Design ©摄影: 图派视觉
卧室|香袅细烟,人和花月眠
卧室作为居住者专属的私密领域,静谧而安宁。它与衣帽间、化妆间共同组成一个完整的功能模块,与公共区域完全分隔。
开启时,客区的声响轻缓漫入,如晨光至暮色般温柔陪伴;闭合时,一切纷扰被妥帖隔绝。情绪在日落时分缓缓升腾,又悄然沉淀于柔软的床榻、有序的衣帽间与窗边的梳妆角落。在此,每一个夜晚来临前的蓝调时刻,都是自我疗愈的静谧仪式。

GuangHe Design ©摄影: 图派视觉

GuangHe Design ©摄影: 图派视觉

GuangHe Design ©摄影: 图派视觉

GuangHe Design ©摄影: 图派视觉

GuangHe Design ©摄影: 图派视觉

GuangHe Design ©摄影: 图派视觉

GuangHe Design ©摄影: 图派视觉

GuangHe Design ©摄影: 图派视

GuangHe Design ©摄影: 图派视觉

GuangHe Design ©摄影: 图派视觉

GuangHe Design ©摄影: 图派视觉

GuangHe Design ©摄影: 图派视觉

GuangHe Design ©摄影: 图派视觉

GuangHe Design ©摄影: 图派视觉

GuangHe Design ©摄影: 图派视觉

GuangHe Design ©摄影: 图派视觉

GuangHe Design ©摄影: 图派视觉
结语
生活日复一日,生命却非简单的重复。于日常的寻常中,我们仍可触摸设计的温度,感知生命的丰盈,回归内心的宁静。
家,不仅是匆忙出发时的慰藉,更是疲惫归来时的温柔承托。生活虽细碎,万物皆可成诗;建筑,从来不只是容器——它是情感的载体,是记忆的剧场,也是我们与世间温柔相认的起点。
项目信息
项目名称:泰达园
项目类别:家居空间
项目地点:辽宁 阜新
项目面积:210㎡
设计机构:光合作用设计事务所
主案设计师:张可
软装设计师:张阳
木作设计师:刘奇
项目完成:2025年10月
摄影:图派视觉

jjybzxw 2025-12-06 09:34
辽宁私人住宅设计以素净的白、雅致的灰与温润的木色构建空间,不仅是对极简美学的实践,更深层地呼应了芬兰建筑大师尤哈尼·帕拉斯玛(Juhani Pallasmaa)关于“空间作为存在场域”与“感知媒介”的哲学理念。帕拉斯玛强调建筑不应仅服务于视觉逻辑或功能主义,而应成为激发人类多重感官体验、唤醒内在意识与存在感的媒介。该住宅的设计通过对色彩、材质、光影与空间节奏的细腻处理,在静谧中引导居住者回归身体知觉与精神栖居,体现了以下五个核心维度的思想契合:

---

一、以“去视觉中心化”唤醒多维感知:从“看”到“在”

帕拉斯玛在《眼睛的建筑》(*The Eyes of the Skin*)中批判现代建筑过度依赖视觉主导,导致人与空间的关系被扁平化。他主张建筑应回归触觉、听觉、温度感等综合知觉系统。  
该住宅以白色为基调,并非追求冷峻的“极简炫技”,而是作为光的载体,弱化边界、柔化体量,使空间趋于“无形”。灰色则作为过渡,营造沉静氛围,避免视觉刺激;而温润木色——尤其是地板、家具与局部墙面的原木材质——则通过其天然纹理、触感温度与微弱香气,激活居住者的触觉记忆与身体经验。赤足行走于木地板上所感受到的微凉与弹性,晨光斜照时木纹浮现的层次变化,都是对“我在”这一存在状态的温柔提醒。

> 此种设计策略正体现了帕拉斯玛所言:“真正的空间体验是发生在皮肤之下的。” 空间不再是被“观看”的对象,而成为被“经历”的过程。

---

二、材料的真实性作为存在的锚点:抵抗异化的栖居方式

帕拉斯玛认为,真实材料所承载的时间痕迹与物质性,能帮助人抵御现代社会中的疏离与虚无。木材作为一种有生命感的材料,其年轮、节疤、收缩膨胀皆诉说着自然律动与时间流逝。  
在该住宅中,木作不加矫饰地暴露结构节点或保留手工打磨痕迹,与素墙形成“人工”与“自然”的对话。白墙并非工业涂料的冰冷覆盖,而是选用具有呼吸性的矿物漆或微水泥,表面带有细微肌理,在不同光线下呈现微妙变化。这种“不完美的完美”,正是帕拉斯玛推崇的“现象学真实”——空间不伪装成某种理想图景,而是坦诚展现其建构逻辑与材料本性。

> 居住者在日复一日的生活中,逐渐感知到墙体在湿度中的微变、木头随季节的伸缩,这些细微变化构成了一种“慢时间”的诗意,使人重新与自然节律同步,重建与世界的具身联系。

---

三、空间的留白与沉默:作为冥想性的存在场域

帕拉斯玛深受东方哲学影响,尤其欣赏日本禅宗中“空”(Ma)的概念——即“间隔”本身即是意义所在。他认为真正的空间价值往往存在于未被填充的部分。  
该住宅摒弃繁复装饰与堆砌陈设,采用开放式布局但通过家具尺度、地坪高差或半隔断制造“心理边界”。例如,客厅与餐厅之间可能仅以一道低矮木柜界定,视线通透而领域分明。这种“若即若离”的空间关系,创造出一种静默的张力,如同音乐中的休止符,赋予日常活动以沉思的余地。

> 当人在这样的空间中独处或与家人共处时,不会被环境压迫或干扰,反而能在“空白”中听见自己的呼吸、思绪的流动,甚至感受到孤独中的丰盈——这正是帕拉斯玛所说的“建筑应提供庇护灵魂的容器”。

---

四、光作为精神性的织物:塑造时间的可感形态

帕拉斯玛将自然光视为建筑中最富灵性的元素,它不是照明工具,而是连接宇宙节律与内心节奏的桥梁。该住宅通过高窗、天井、格栅与反射面精心引导光线,使其在一天之中缓慢移动、变幻强度与色彩。  
清晨,东向窗户将柔和金光洒入卧室,唤醒身体;午后,西晒经浅灰墙面漫射,转化为均匀的银灰色调;傍晚,室内暖光从木质角落升起,与窗外暮色交融。这种光的变化不是机械的明暗切换,而是一场持续上演的“光之戏剧”,让居住者在无意识中感知时间的质地。

> 光在此不仅是物理现象,更是一种存在的见证者——它照亮的不只是房间,更是人在此时此刻的生命状态。

---

五、私密性与内省性的平衡:从功能空间到心灵容器

帕拉斯玛反对将住宅简化为功能盒子的组合,主张每个空间都应具备“心理深度”,能够容纳人的梦想、回忆与沉思。该住宅虽为私人居所,但在设计中并未一味扩张面积,反而通过压缩某些过渡空间(如走廊)来强化核心区域(如书房、茶角)的沉浸感。  
例如,设置一处靠窗的阅读凹龛,仅容一人蜷坐,配有可调节角度的壁灯与小型书架,形成“思想的茧房”;又或是在主卧之外另辟冥想小室,墙面涂以深灰,配以天然石材台面与一缕香氛,专为情绪沉淀而设。这些“非必要却必需”的空间,正是帕拉斯玛所倡导的“建筑应服务于人的内在生活”的体现。

> 它们不生产效率,却滋养灵魂;它们不展示财富,却彰显存在的尊严。

---

结语:在极简中重寻存在的重量

辽宁这处私人住宅的设计,表面上是色彩与材质的选择,实则是对现代生活方式的一次深刻反思。它拒绝浮华喧嚣,选择以白、灰、木三种基本语汇,构筑一个能让人心安下来的“存在场域”。在这个空间中,人不再只是“使用者”,而是“体验者”、“感知者”与“栖居者”。  

正如帕拉斯玛所说:“建筑的终极任务,是帮助我们成为更完整的人。” 这座住宅正是这样一种尝试——在东北大地的寒风与雪影之间,用温暖的木、静谧的灰与纯净的白,织就一张承接心灵的网,让人重新学会如何“在场”,如何“感受”,如何“存在”。


查看完整版本: [-- 辽宁泰达园 / 光合作用设计事务所[45P] --] [-- top --]


Powered by www.wdsz.net v8.7.1 Code ©2005-2018www.wdsz.net
Gzip enabled


沪ICP备:05041533号