查看完整版本: [-- 无锡新吴区文博实验中学 / 江苏博森建筑设计[36P] --]

武当休闲山庄 -> 无奇不有 -> 无锡新吴区文博实验中学 / 江苏博森建筑设计[36P] [打印本页] 登录 -> 注册 -> 回复主题 -> 发表主题

jjybzxw 2025-12-06 09:39

无锡市新吴区文博实验中学位于无锡市新吴区泰山路上,西侧紧邻泰山路实验小学。项目用地面积2.65万平米,需提供满足30+3班及2.3万平方米的地上建筑面积,同时需解决小学和本地块的地下接送功能,及运动场地的对外开放性需求。

东侧沿街航拍
我们于2023年初开始该方案的概念设计,经过两年的图纸深化和建设,学校于今年9月份顺利开学。本案为现状泰山路实验小学预留地块的高密度扩建初中部项目,建成后改为独立运营使用,设计整体考虑为扩建的设计逻辑。

教学楼接送庭院

教学楼走廊外立面

行政楼沿街
01.
项目背景
基于上述设计条件,本地块需综合考虑在既有建筑基础上,处理好新旧建筑之间的整体关系,又要在高密度、高容积的条件下,提供适宜尺度的空间,及相应的功能要求,包括1800人食堂、600人报告厅及风雨操场等基础功能需求。同时还要尽可能充分利用场地资源,尽可能多地设置满足日常体育教学及学生活动的场地。

东南角航拍
现状小学主体为传统鱼骨式布局,配有300米跑道。教学楼集中于北侧主入口附近,教学区四排建筑体量形成三个半围合院落。在此基础上,设计对应小学校区设置四条新的鱼骨。使得三个院落得以扩大并相互渗透。同时在校园居中部位设置图书馆,并通过新旧两栋行政楼围合形成新的校园主入口广场。东侧叠合食堂、报告厅、风雨操场及跑道功能,通过架空的形式,得以在紧张的场地内部提供上下两层活动空间,同时200米标准跑道及100米直道的设置,也得以在用地紧张的条件下,尽量满足学校日常的体育教学任务需求。

操场上漂浮的盒子
02.
叠合校园
高密度校园的主要矛盾为室外活动空间的不足,对于中小学生来说室外活动场地又是极为重要的需求。叠合校园的设计则是本案在解决该矛盾时运用的主要方法,通过运动场地的抬升,学生可以在课间十分钟更快捷地到达运动场区域。同时下侧的架空层也可以天然地补充风雨操场的活动需求。

地下风雨球场

地下风雨球场
结合地库及架空层层高,风雨篮球场的下置,也使得架空操场的高度得以降低,从而保证在小尺度道路上城市友好的学校形象。

操场上漂浮的盒子

东侧架空操场次入口
东侧架空层内除食堂及风雨操场外,还集合了学校东侧次入口及地下接送次入口设计。结合围网的设置,使得东侧操场及地下车库风雨操场等空间,满足错峰对外开放的可能性。
本案在极其紧张的用地内,不仅通过叠合校园解决了功能需求、室外空间、建筑尺度等关键问题,同时也顺势在东侧沿操场部分外廊,通过变化的出挑的楼梯和平台结合格栅,形成整体且轻盈漂浮的体量和形象。

架空操场与共享空间

架空操场与共享空间

教学楼与操场连廊

迎操场面楼梯局部

教学楼局部特写

教学楼沿操场外立面

报告厅与食堂
03.
地下接送系统
现状小学的接送主要依靠北侧校园外道路,其内部存在人车混行的问题。因此本案扩建的主要任务之一,便是解决两校区停车及接送的问题,以缓解上下学时北侧道路的交通压力。满布的地下车库及独立的进出坡道在提供三车道接送岛的同时,也补充了420个地下停车位,以解决教师及家长接送停车需求。

设计策略
北侧围墙退用地红线15米,从而提供家长接送非机动车停车区域。小学及初中居中部位设置门卫结合标志性塔楼设置5.5米大台阶直通地下接送大厅。学生则通过教学楼一层架空层的两部独立楼梯,得以上下学通过闸机有序进入校园。

教学楼连廊内院

材质及体量交接

教学楼庭院

行政楼南侧局部特写

图书馆与教学楼
04.
结语
新校园根植于原始肌理呈现自然生长的态势,新旧建筑与开放空间通过广场、庭院、连廊、大台阶多维度连接、多层次渗透、多尺度共享,形成有机共融的整体形象。本案是在极端场地条件下,对高密度校园设计的一次探讨和尝试。通过叠合校园的设计,同时解决了功能需求、室外空间、建筑尺度等一系列关键问题。另一方面,满布地库及接送流线、围墙围网的设计,也在扩建校园中提供了解决接送和错峰对外开放的思路。

入口广场、接送等候与行政楼

主入口图书馆

主入口图书馆
“儿童放学归来早,忙趁东风放纸鸢。”在双减背景下,我们希望新吴区文博实验中学能像一只纸鸢,承载起孩子们的梦想,打破对于常规校园空间的刻板印象,带着他们去到更宽广的世界。

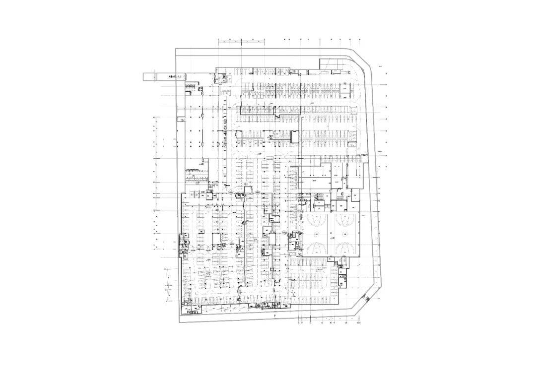
一层平面图
二层平面图

三层平面图

四层平面图
屋顶平面图

地下室平面图

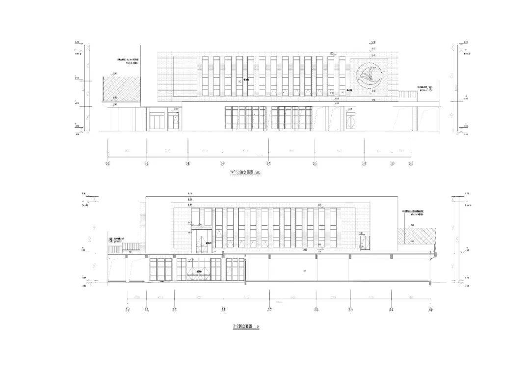
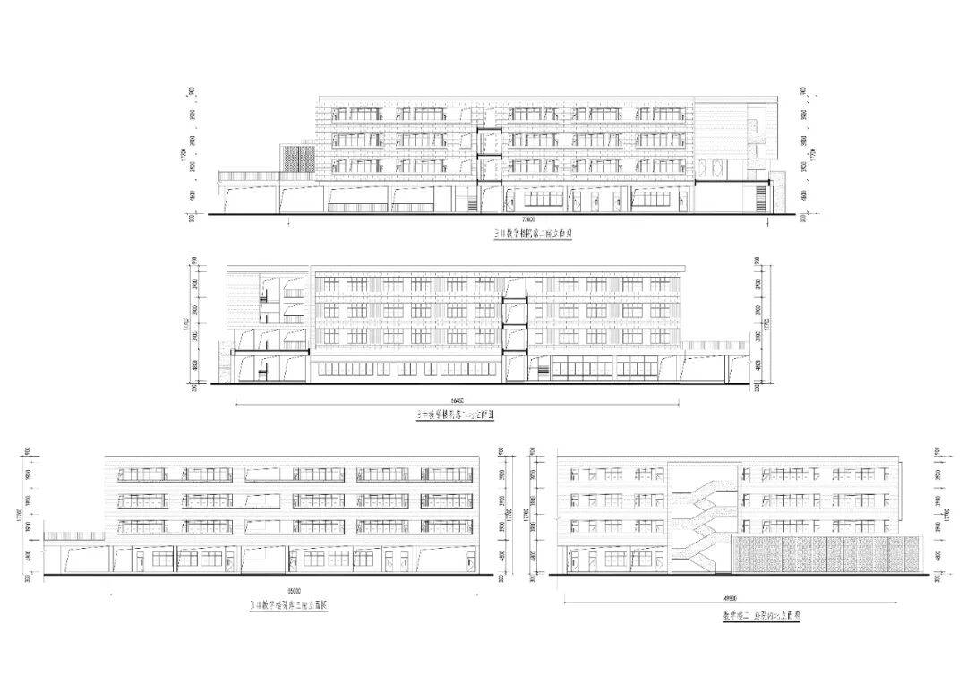
教学楼立面图

教学楼立面图

教学楼立面图

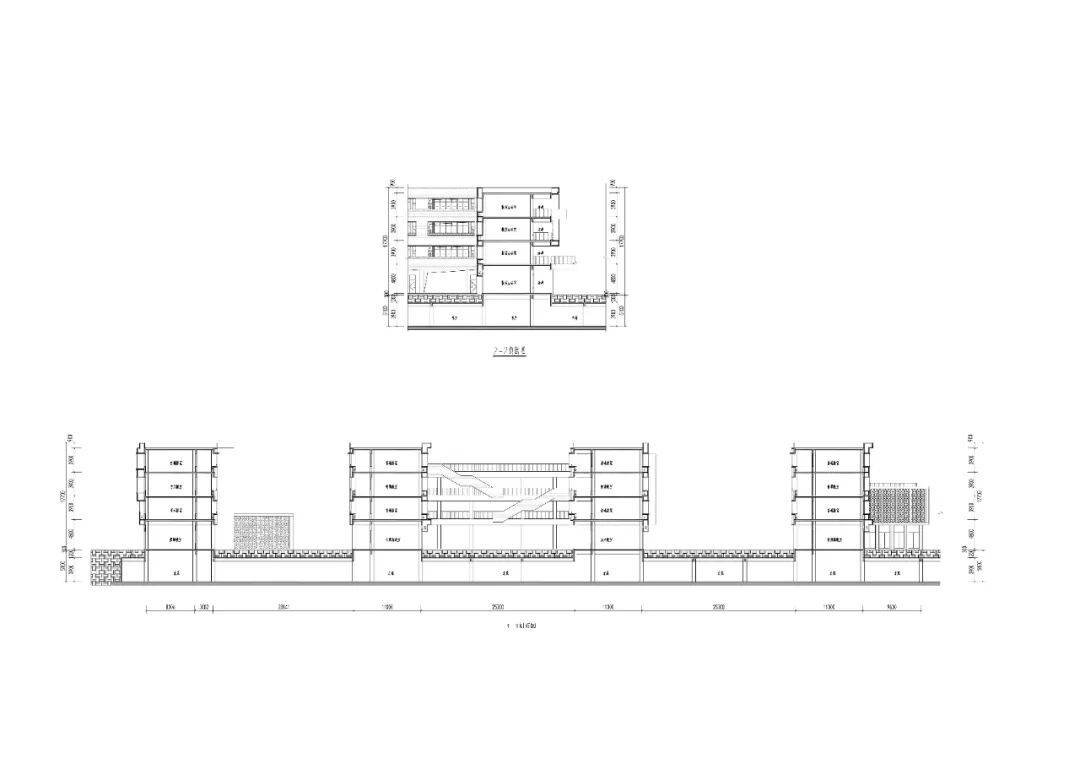
教学楼剖面图

行政楼立面图

报告厅食堂立面图
报告厅食堂剖面图
架空操场立面图
项目名称:无锡新吴区文博实验中学
项目类型:学校建筑
代建单位:无锡市新吴区重点建设项目管理中心
业主:无锡市新吴区文博实验中学
设计方单位:江苏博森建筑设计有限公司
项目设计:2023-2024
完成年份:2025.07
项目地址:中国无锡新吴区
场地面积:26515.00㎡
建筑面积:44358.93㎡
学生总数:1800人
总建筑师:黄新煜
方案设计负责人:王庄
方案设计团队:张洁 朱旻 高宇 于保永 蒋振宇 刘帅 邓雅闻 尤龙 滕宇飞 杨桥
施工图负责人:陈超
施工图团队:
建筑:薛鸣、张军、陈超、毕莹
结构:翁卫庆、吴梅芳、陈健
暖通:陈强、金婷、周肖
电气:商毅、孙语浓、邹云蔚
给排水:解天一、莫俊杰、樊泽鲲
景观设计团队:钱来高 华苗苗 袁秋实 王斌 张海旭 丁建
装饰设计:郭浩 刘广梁 过明亮

jjybzxw 2025-12-06 09:40
无锡市新吴区文博实验中学与泰山路实验小学共用地下接送系统及运动场布局规划方案

---

一、项目背景与核心挑战解析

无锡市新吴区文博实验中学项目用地面积为 26,500平方米(约39.75亩),规划设置 30个初中班+3个机动/特殊功能班,地上建筑面积达 23,000平方米,容积率约为 0.87,属于中高密度教育用地开发。在该背景下,若需与相邻的泰山路实验小学实现地下接送系统共享与运动场地协同利用,则面临以下核心挑战:

- 土地资源紧张,独立建设地下接送系统经济性差;
- 上下学高峰时段接送人流、车流集中,交通组织压力大;
- 运动场地(尤其是400米环形跑道与球场)占地较大,单校难以独立满足规范要求;
- 两校年龄层不同(小学与初中),安全管理需差异化设计。

为此,应以“集约用地、安全分流、智慧管理、资源共享”为核心理念,构建一体化、分时分区、智能调控的共用系统。

---

二、共用地下接送系统的整体规划策略

1. 空间整合:共建跨校地下接送大厅
- 在两校交界区域(建议选址于文博中学南侧与小学北门之间)建设一个总面积约4,000~5,000㎡的地下接送大厅,通过下沉广场或缓坡通道连接两校主入口。
- 接送厅划分为两个主要区域:
  - A区:小学专用接驳带(低年级家长可步行进入)
  - B区:中学预约制落客区(仅允许即停即走,禁止长时间停留)
- 设置双循环车行流线:东进西出、南进北出两条独立路线,避免交叉拥堵。

2. 时间错峰与智能调度系统
- 小学放学时间通常早于中学(如15:30 vs 17:00),可实现分时共享:
  - 中午与傍晚高峰期分别开放对应区域;
  - 非使用时段自动切换为临时停车或设备维护区。
- 引入校园接送APP+车牌识别系统:
  - 家长预约接送时段,系统分配最优车道;
  - 实时推送学生出楼位置,引导车辆提前就位;
  - 支持人脸识别闸机,确保学生仅能进入对应学段区域。

3. 安全隔离与行为管控设计
- 物理隔离:采用可升降路障、玻璃隔断墙,在非共享时段封闭一侧通道;
- 行为引导:
  - 小学生由教师带队统一进入接送区,家长不得擅自进入教学区;
  - 初中生凭电子手环自主通行,杜绝陌生人尾随;
- 应急预案:设置紧急疏散通道直通地面公园绿地,配备消防广播与监控全覆盖。

> ✅ 技术补充:建议采用BIM+智慧校园平台进行三维模拟,优化车流动线与等候区容量配比,确保每小时可承载不少于1,200辆车次的接送能力。

---

三、运动场地协同布局与复合利用模式

1. “一核双环”运动空间结构设计
鉴于标准400米田径场占地面积约17,000㎡,超出单校承受能力,建议采用联合申报、共同出资、政府统筹的方式,在两校之间打造一个共享型综合运动核心区,形成“一核双环”布局:

| 结构 | 内容 |
|------|------|
| 中心核 | 共享400米塑胶跑道+天然草足球场(白天归小学体育课使用,傍晚与周末向中学开放) |
| 内环 | 篮球、排球、羽毛球等多功能硬质场地(设置可移动围网,支持快速转换用途) |
| 外环缓冲带 | 缓坡绿化带+健身步道+风雨连廊,连接两校教学楼 |

2. 竖向分层与屋顶运动场创新应用
由于文博中学地上建筑面积需求高(2.3万㎡),建议采取以下集约化设计:

- 屋顶运动平台:
  - 在中学综合楼或行政楼顶部建设标高8~10米的空中操场(面积约2,000㎡),铺设悬浮地板,用于跳远、体操、小型球类活动;
  - 配备防风网与声屏障,减少对周边影响。
- 半地下体育馆:
  - 利用地下接送系统的上盖空间,建造夹层式室内体育馆(层高≥6m),容纳篮球、羽毛球、武术等功能;
  - 平时供中学使用,节假日向小学开放。

3. 分时使用与课程协调机制
建立由教育局牵头的“两校体育联席委员会”,制定《共享运动场地使用规程》,明确:

- 每周固定时段划分(如周一至周五上午:小学优先;下午4:30后:中学使用);
- 大型赛事提前申报,协调错开举办日期;
- 共同采购智能化场地预约系统,支持微信小程序一键预订。

> 🌿 生态融合建议:将部分运动区边缘设计为“自然教育角”,种植本地植物,结合小学科学课开展户外教学,提升空间附加值。

---

四、规划实施路径与政策建议

| 阶段 | 主要任务 |
|------|--------|
| 前期协商阶段 | 成立跨校联合工作组,对接自然资源和规划局、住建局、交警部门,争取将共用设施纳入控规调整范围 |
| 设计深化阶段 | 采用EPC总承包模式,邀请具有校园综合体经验的设计院主导,同步开展交通影响评估(TIA)与日照分析 |
| 审批突破阶段 | 申请“教育设施共建试点项目”,争取容积率奖励、绿地率折算、停车位配建指标减免等政策支持 |
| 建设运营阶段 | 建立“统一运维基金”,两校按学生人数比例分摊后期管理费用;引入第三方物业公司负责日常保洁与安保 |

---

五、结语:迈向未来学校的新型空间范式

本项目不仅是解决用地紧张的技术命题,更是探索城市密集区教育资源集约化配置的制度创新。通过打破中小学之间的“围墙思维”,构建“空间共享、时间错序、管理协同、技术赋能”的新型校园共同体,不仅能有效缓解接送难、运动缺等问题,更可成为无锡市推动“15分钟教育生活圈”建设的标杆案例。

> 延伸思考方向:
> - 是否可在该片区进一步整合幼儿园、社区文体中心,形成“全龄段教育聚落”?
> - 如何借助碳中和技术(如光伏顶棚、雨水回收球场喷灌)提升绿色校园品质?

此规划不仅服务于当下,更为未来城市教育空间的发展提供了可复制、可推广的“新吴样板”。


查看完整版本: [-- 无锡新吴区文博实验中学 / 江苏博森建筑设计[36P] --] [-- top --]


Powered by www.wdsz.net v8.7.1 Code ©2005-2018www.wdsz.net
Gzip enabled


沪ICP备:05041533号