切换到宽版
  • 16阅读
  • 2回复

[奇观]北京天恒·半山世家 / 史湛铭//浙江丽水江边的老屋更新 / 参照建筑 + 离宅半米[63P] [复制链接]

上一主题 下一主题
在线jjybzxw

UID: 551814

 

发帖
221717
金币
692173
道行
2006
原创
2450
奖券
3340
斑龄
42
道券
1233
获奖
0
座驾
设备
摄影级
在线时间: 48103(小时)
注册时间: 2008-10-01
最后登录: 2026-01-26
只看楼主 倒序阅读 使用道具 楼主  发表于: 昨天 08:49
— 本帖被 xgch 执行加亮操作(2026-01-25) —
北京天恒·半山世家 / 史湛铭[34P]

新中式禅意为魂,融东方美学之韵与现代设计之语,构筑一方兼具文化深蕴与舒适质感之居所。材质、空间布局、细节雕琢等维度,诠释“禅意栖居”之现代诗篇……







原木是纸,光影作笔,将盆景的翠、扇面的墨,轻轻写进空间的留白里。风过处,木纹漾成涟漪,连呼吸都沾了三分山水气。






茶席沉在木色里,灯笼漏下软光,纸屏滤过的风裹着竹影,落在茶盏边成了浅纹。连呼吸都慢成轻烟,只余茶雾与光影,在室间织着松弛的静。











竹影栖于木墙,光缕织进茶席——这方室间,把山林的静,酿成了日常的暖。




于木色温润中,寻得一方松弛天地。自然光影漫过窗棂,落于素雅的布艺与肌理温润的石材之上,东方水墨的留白意趣,与原木柜体的通透收纳相映成趣。




柔纱吊灯漫开的光晕,落于木纹与石材的肌理之上,格栅半掩间,是窗外的葱茏绿意,也是室内的东方意韵。
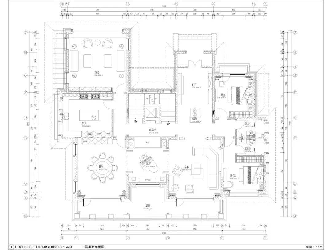
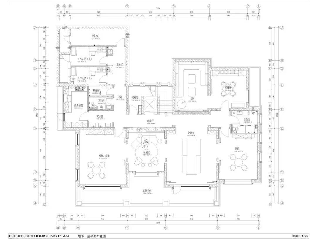
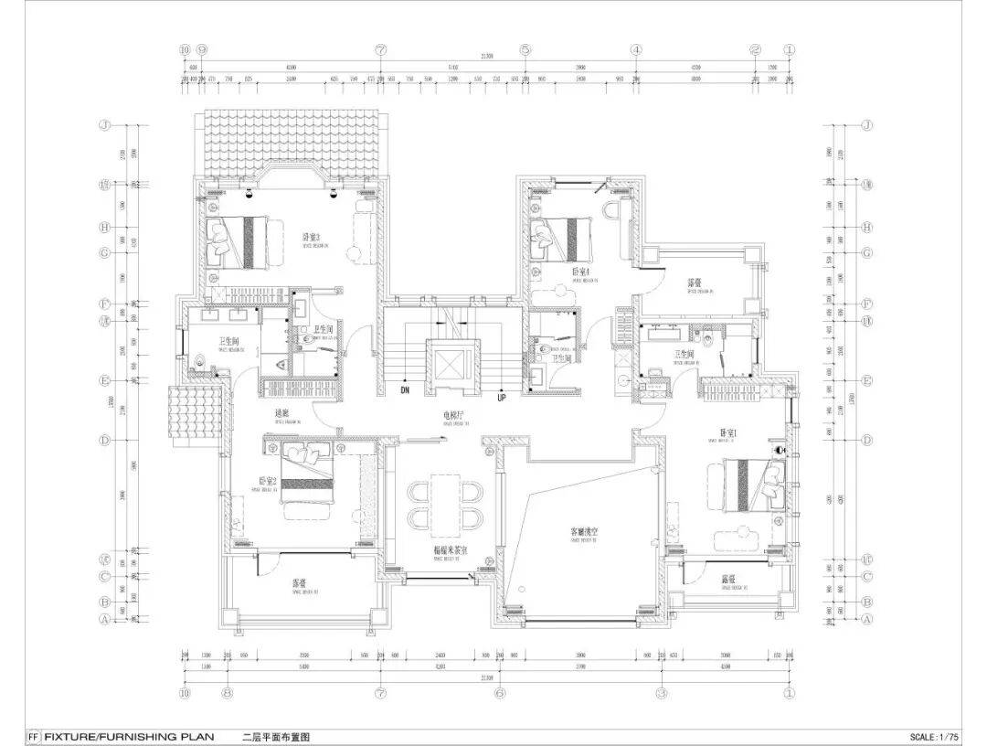
项目平面图

B1

1F

2F
项目信息
项目名称:天恒·半山世家
项目地点:北京,怀柔
项目面积:1100平方米
设计时间:2024年12月
完工时间:2025年7月
设计公司:北京泛恩国际建筑设计顾问有限公司
主创设计师:史湛铭、王阳
施工团队:北京壹起建筑有限公司
项目主材:石材、木饰面
摄影师:阿刁
========================================================================================================================================


浙江丽水江边的老屋更新 / 参照建筑 + 离宅半米[29P]


© 奥观建筑视觉AOGVISION
项目背景与场地认知
项目位于浙江省遂昌县王村口镇乌溪江畔的一处临水高地,背山面水,下方连接天然石滩。明清时期,这里曾是王村口重要的水运码头,承担区域商贸往来的节点功能;进入近代,周边又成为浙西南红色革命的重要活动区域。曾经的这里人流密集、功能活跃,而随着时代变迁,建筑逐渐荒废,场地的公共属性也随之消隐。

▲周边环境 ©奥观建筑视觉 AOGVISION

▲项目概览 ©奥观建筑视觉 AOGVISION
在多次踏勘中我们发现,尽管王村口镇被河流贯穿,但沿河岸线多被连续民居占据,可供村民亲近水面的公共空间十分有限。本次改造的老屋恰好位于一处小广场与河岸之间,却因自身的封闭性,长期阻断了村庄与江水的联系。项目由此提出一个明确的目标:通过更新这栋老屋,将“隔绝”转化为“连接”,为村民释放一处可被自由使用的滨水公共空间。


▲老屋改造后鸟瞰 ©奥观建筑视觉 AOGVISION


▲老屋与水岸 ©奥观建筑视觉 AOGVISION

▲老屋改造后 ©奥观建筑视觉 AOGVISION
设计策略:基于原有结构的空间重组
场地核心是一栋两层传统木结构老屋。其木作框架保存较为完整,但外围围护体系老化严重,空间尺度与使用方式已难以适应当下需求。设计并未选择以新建筑取代旧屋,而是将更新视为一次基于原有结构条件的再组织。

▲老屋改造前 ©参照建筑 Ref Architects

▲老屋原始风貌 ©参照建筑 Ref Architects
原有木作框架被完整保留,失效的外围构件被拆除,在老屋内部嵌入四个功能性木盒单元,通过“新盒嵌入旧架”的方式重新组织空间秩序。这一介入并非对旧结构的覆盖,而是在既有构造逻辑之内展开。

▲保留原有木作框架,拆除失效的外围构件 ©参照建筑 Ref Architects
四个木盒的置入,既引入了新的使用可能,也在结构层面参与到原有木框架的加固之中。它们在既有框架内部形成新的支点,与原有木构共同构成稳定的结构体系,使空间更新与结构强化在同一过程中完成。

▲“新盒嵌入旧架” ©参照建筑 Ref Architects
空间组织:公共性的重新建立
建筑首层被定义为一个可被自由穿行的公共层。木盒在平面与高度上的错动,形成多条非线性的流线与视线关系,人可以从不同方向进入,在木盒之间穿行、停留,并与江岸及石滩建立直接联系。首层更接近一种被不断使用的片段化场所,而非完整封闭的建筑空间。


▲首层的公共性被重新建立 ©奥观建筑视觉AOGVISION


▲可被自由穿行的公共层 ©奥观建筑视觉AOGVISION


▲在木盒之间穿行、停留 ©奥观建筑视觉AOGVISION
二层空间相对收敛。三个独立木盒朝向乌溪江展开,视线被引导向远处山水;同时,下方裸露的木构体系仍清晰可见,使人在停留时感知到建筑在时间与尺度上的叠加关系。


▲三个独立木盒朝向乌溪江展开 ©奥观建筑视觉 AOGVISION

▲裸露的木构体系 ©奥观建筑视觉 AOGVISION

▲二层相对独立 ©奥观建筑视觉 AOGVISION

▲二层空间 ©奥观建筑视觉 AOGVISION
场地条件回应与材料态度
针对乌溪江上游水库不定期泄洪的现实条件,建筑在结构层面作出回应-给木构穿上“雨靴”。相对室外广场标高1.45米以下部分整体设置为混凝土基座系统,用以托举柱脚与上部木盒,确保结构在水位变化下的安全与稳定。基座形成沉稳的下盘,与上部相对轻盈的木构形成清晰对比。


▲混凝土基座系统与木制结构 ©奥观建筑视觉 AOGVISION
在材料使用上,拆除下来的旧木板被重新整理、修缮,并再次用于建筑内部搭建,使老屋的物质记忆得以延续。

▲老屋的物质记忆得以延续 ©奥观建筑视觉 AOGVISION

▲“雨靴”与“旧木” ©奥观建筑视觉 AOGVISION


▲室内细部 ©奥观建筑视觉 AOGVISION
结果
通过一次克制而精准的介入,这座老屋在不改变其基本气质的前提下,重新参与到当下的公共生活之中。建筑不再只是历史的遗存,而成为连接山水、村落与记忆的现实节点,在新的结构关系中持续被使用与理解。



▲老屋继续 ©奥观建筑视觉 AOGVISION
项目图纸
▲一层平面图 ©参照建筑 Ref Architects
▲二层平面图 ©参照建筑 Ref Architects
项目名称:江边的老屋
项目类型:复合公共空间
项目地点:浙江省丽水市遂昌县王村口镇
设计单位:参照建筑 Ref Architects + 离宅半米 0.5m Studio
设计团队: 胡文渊、方尧、汤珺如、王娇儿
建筑面积: 240m²
设计时间:2025.1-2025.8
施工时间:2025.10-2025.12
业主:遂昌王村口镇,Backland 般岚文化
摄影:奥观建筑视觉AOGVISION


© 奥观建筑视觉AOGVISION
项目背景与场地认知
项目位于浙江省遂昌县王村口镇乌溪江畔的一处临水高地,背山面水,下方连接天然石滩。明清时期,这里曾是王村口重要的水运码头,承担区域商贸往来的节点功能;进入近代,周边又成为浙西南红色革命的重要活动区域。曾经的这里人流密集、功能活跃,而随着时代变迁,建筑逐渐荒废,场地的公共属性也随之消隐。

▲周边环境 ©奥观建筑视觉 AOGVISION

▲项目概览 ©奥观建筑视觉 AOGVISION
在多次踏勘中我们发现,尽管王村口镇被河流贯穿,但沿河岸线多被连续民居占据,可供村民亲近水面的公共空间十分有限。本次改造的老屋恰好位于一处小广场与河岸之间,却因自身的封闭性,长期阻断了村庄与江水的联系。项目由此提出一个明确的目标:通过更新这栋老屋,将“隔绝”转化为“连接”,为村民释放一处可被自由使用的滨水公共空间。


▲老屋改造后鸟瞰 ©奥观建筑视觉 AOGVISION


▲老屋与水岸 ©奥观建筑视觉 AOGVISION

▲老屋改造后 ©奥观建筑视觉 AOGVISION
设计策略:基于原有结构的空间重组
场地核心是一栋两层传统木结构老屋。其木作框架保存较为完整,但外围围护体系老化严重,空间尺度与使用方式已难以适应当下需求。设计并未选择以新建筑取代旧屋,而是将更新视为一次基于原有结构条件的再组织。

▲老屋改造前 ©参照建筑 Ref Architects

▲老屋原始风貌 ©参照建筑 Ref Architects
原有木作框架被完整保留,失效的外围构件被拆除,在老屋内部嵌入四个功能性木盒单元,通过“新盒嵌入旧架”的方式重新组织空间秩序。这一介入并非对旧结构的覆盖,而是在既有构造逻辑之内展开。

▲保留原有木作框架,拆除失效的外围构件 ©参照建筑 Ref Architects
四个木盒的置入,既引入了新的使用可能,也在结构层面参与到原有木框架的加固之中。它们在既有框架内部形成新的支点,与原有木构共同构成稳定的结构体系,使空间更新与结构强化在同一过程中完成。

▲“新盒嵌入旧架” ©参照建筑 Ref Architects
空间组织:公共性的重新建立
建筑首层被定义为一个可被自由穿行的公共层。木盒在平面与高度上的错动,形成多条非线性的流线与视线关系,人可以从不同方向进入,在木盒之间穿行、停留,并与江岸及石滩建立直接联系。首层更接近一种被不断使用的片段化场所,而非完整封闭的建筑空间。


▲首层的公共性被重新建立 ©奥观建筑视觉AOGVISION


▲可被自由穿行的公共层 ©奥观建筑视觉AOGVISION


▲在木盒之间穿行、停留 ©奥观建筑视觉AOGVISION
二层空间相对收敛。三个独立木盒朝向乌溪江展开,视线被引导向远处山水;同时,下方裸露的木构体系仍清晰可见,使人在停留时感知到建筑在时间与尺度上的叠加关系。


▲三个独立木盒朝向乌溪江展开 ©奥观建筑视觉 AOGVISION

▲裸露的木构体系 ©奥观建筑视觉 AOGVISION

▲二层相对独立 ©奥观建筑视觉 AOGVISION

▲二层空间 ©奥观建筑视觉 AOGVISION
场地条件回应与材料态度
针对乌溪江上游水库不定期泄洪的现实条件,建筑在结构层面作出回应-给木构穿上“雨靴”。相对室外广场标高1.45米以下部分整体设置为混凝土基座系统,用以托举柱脚与上部木盒,确保结构在水位变化下的安全与稳定。基座形成沉稳的下盘,与上部相对轻盈的木构形成清晰对比。


▲混凝土基座系统与木制结构 ©奥观建筑视觉 AOGVISION
在材料使用上,拆除下来的旧木板被重新整理、修缮,并再次用于建筑内部搭建,使老屋的物质记忆得以延续。

▲老屋的物质记忆得以延续 ©奥观建筑视觉 AOGVISION

▲“雨靴”与“旧木” ©奥观建筑视觉 AOGVISION


▲室内细部 ©奥观建筑视觉 AOGVISION
结果
通过一次克制而精准的介入,这座老屋在不改变其基本气质的前提下,重新参与到当下的公共生活之中。建筑不再只是历史的遗存,而成为连接山水、村落与记忆的现实节点,在新的结构关系中持续被使用与理解。



▲老屋继续 ©奥观建筑视觉 AOGVISION
项目图纸
▲一层平面图 ©参照建筑 Ref Architects
▲二层平面图 ©参照建筑 Ref Architects
项目名称:江边的老屋
项目类型:复合公共空间
项目地点:浙江省丽水市遂昌县王村口镇
设计单位:参照建筑 Ref Architects + 离宅半米 0.5m Studio
设计团队: 胡文渊、方尧、汤珺如、王娇儿
建筑面积: 240m²
设计时间:2025.1-2025.8
施工时间:2025.10-2025.12
业主:遂昌王村口镇,Backland 般岚文化
摄影:奥观建筑视觉AOGVISION
[ 此帖被jjybzxw在2026-01-25 08:51重新编辑 ]
1条评分金币+35
xgch 金币 +35 辛苦了,感谢您无私奉献的精神! 昨天 21:58
山庄提示: 道行不够,道券不够?---☆点此充值☆
 
在线jjybzxw

UID: 551814


发帖
221717
金币
692173
道行
2006
原创
2450
奖券
3340
斑龄
42
道券
1233
获奖
0
座驾
设备
摄影级
在线时间: 48103(小时)
注册时间: 2008-10-01
最后登录: 2026-01-26
只看该作者 沙发  发表于: 昨天 08:54
这两个项目,一个是北京的顶级豪宅(天恒·半山世家),一个是浙江丽水的乡村老屋更新。

虽然它们的定位、预算、功能截然不同,但你把它们放在一起,其实揭示了当代中国设计中一个非常迷人的共同点:对“东方意境”的两种极致表达。

一个是“做加法”的精致奢华,一个是“做减法”的在地重生。

我为你提炼了这两个项目的核心设计语言和对比分析:

---

一、 北京天恒·半山世家:新中式的“精致禅意”
关键词: 材质美学、光影游戏、秩序感、奢华

这个项目(史湛铭设计)代表了高端住宅对东方美学的理解。它不追求传统的繁复雕饰,而是用现代的手法去解构禅意。

1.  材质的对话:
       原木与石材: 大面积的温润木饰面打底,搭配肌理感的石材。木是“柔”,石是“刚”,一暖一冷,构建了空间的高级质感。
       纸与纱: 纸屏、柔纱吊灯,这些半透明材质的运用,让光线变得柔和朦胧,营造出一种“隔而不断”的朦胧美。

2.  光影的叙事:
       文案里那句“原木是纸,光影作笔”非常精准。设计师极其看重自然光的引入,让竹影、树影投射在墙面和地面上,随着时间推移,空间也在发生变化。这种“借景”手法,把室外的山水气带进了室内。

3.  空间的秩序:
       1100平米的大平层/别墅,空间布局非常讲究“动静分区”和“礼仪感”。茶席的设置、留白的处理,都体现了主人对静谧生活的追求。这是一种“入世”的奢华,却带着“出世”的心态。

---

二、 浙江丽水江边的老屋:乡土建筑的“在地重生”
关键词: 新旧共生、公共性、结构加固、低成本策略

这个项目(参照建筑 + 离宅半米)代表了乡村振兴与建筑改造的最高水准之一。它不追求昂贵的材料,而是追求建筑与环境、人与空间的关系。

1.  策略的高明:“新盒嵌入旧架”
       保留: 完整保留了原有的木作框架,这是建筑的“魂”。
       介入: 拆除老化的外围护,在内部嵌入四个功能性的“木盒”。这些盒子既是新的功能空间(如卫生间、储物、楼梯),又起到了加固老结构的作用。
       结果: 这种手法既尊重了历史,又满足了现代使用需求,是典型的“低技术、高智慧”。

2.  功能的置换:从“封闭”到“连接”
       老屋原本阻断了村庄与江水的联系。设计师通过拆除围墙、打开首层,让建筑变成了一个“可穿透”的公共节点。
       村民可以穿过建筑去江边,建筑内部的灰空间变成了休息、聊天的场所。这让建筑重新融入了社区生活,具有了极强的社会价值。

3.  对自然的回应:
       防洪设计: 针对乌溪江的泄洪风险,设计了混凝土“雨靴”基座,既解决了防潮防洪问题,又在视觉上形成了“上轻下重”的稳定感。
       旧物利用: 拆除下来的旧木板被重新利用,保留了时光的痕迹。

---

三、 深度对比:两种“东方”,两种“温度”

| 维度 | 北京天恒·半山世家 | 浙江丽水江边的老屋 |
|:--- |:--- |:--- |
| 定位 | 私享豪宅 | 公共更新 |
| 核心逻辑 | 做加法:通过精致的材质和工艺,营造极致的居住体验。 | 做减法:剥离多余的装饰,保留结构的本质,释放空间的公共性。 |
| 东方美学 | “雅”:强调意境、留白、静谧,是文人雅士的理想居所。 | “朴”:强调在地性、粗野主义、共生,是乡土中国的真实写照。 |
| 光线处理 | 人工光与自然光的结合,营造温馨、暧昧的氛围。 | 自然光为主,光影在裸露的木构间穿梭,强调时间的流逝。 |
| 材料运用 | 高档主材(定制木饰面、石材),追求完美的工艺细节。 | 回收材料与廉价材料(旧木板、混凝土),追求真实的质感对比。 |
| 情感连接 | 连接的是主人的内心世界,提供精神避难所。 | 连接的是人与土地、人与人,提供社区归属感。 |

四、 总结

这两个项目虽然看起来天差地别,但它们都抓住了“设计的本质”:

   半山世家告诉我们,即使在繁华都市,设计也能通过营造东方意境,让人找到内心的宁静。
   丽水老屋告诉我们,即使是破败的乡村,设计也能通过激活空间,让历史与现代共生,让建筑重新拥有温度。

一个是“锦上添花”的艺术,一个是“雪中送炭”的责任。

把这两个放在一起,其实展示了中国设计的广度与深度——既能服务于塔尖人群的审美,也能扎根于泥土,解决社会的实际问题。
1条评分金币+6
xgch 金币 +6 回复认真,加分鼓励 昨天 21:58
如何不发帖就快速得到金币道行
 
在线姜谷粉丝

UID: 1569053

精华: 2
级别: 玉清道君

发帖
169149
金币
507434
道行
20030
原创
768
奖券
359
斑龄
0
道券
30
获奖
0
座驾
设备
摄影级
在线时间: 20894(小时)
注册时间: 2012-06-21
最后登录: 2026-01-25
只看该作者 板凳  发表于: 昨天 08:56
北京天恒·半山世家
项目位于北京怀柔区红螺路39号院,紧邻国家4A级红螺湖风景区,经京承高速宽沟口出向北5公里可至。开发商为北京山天置业有限公司(或北京天恒房地产股份有限公司),物业由北京鼎泽物业有限公司提供。
作为独栋别墅社区,容积率约0.32,绿化率达80%,主力户型为4-9居(324-506平方米),设计上保留传统肌理与文化底蕴,简化线条,同时配备入户车位、地下室(赠送)、超大景观露台等功能空间,满足家庭居住与休闲需求。
交通便捷,至怀柔城区仅需5分钟车程,周边餐饮、购物、娱乐、教育及医疗配套齐全,整座城区可作为生活配套。

浙江丽水江边的老屋更新
丽水作为华东地区古村落数量最多、保存最完好的区域(如松阳78个国家级传统村落),近年来通过“拯救老屋行动”推进古村老屋更新,遵循“最小干预”原则,采用传统工艺(泥土、木材、石块等就地取材),修旧如旧保留原始风貌,同时完善设施以适应现代使用需求。
更新后的老屋多以活态方式活化:如松阳陈家铺村引入先锋书店、飞茑集民宿等业态,吸引游客与新乡人定居;小后畲自然村的老屋被拍摄公司租赁,实现文化传承与经济收益双赢;丽水莲都区江边的老屋则改造为别墅式民宿(如大港头镇玉溪村的江边小屋),结合江景打造休闲体验空间(麻将室、KTV、茶室、庭院等),满足游客多元化需求。
通过老屋修复与业态植入,古村焕发生机,不仅保留了历史记忆,更带动了村民增收(如出租老屋、售卖农产品)与乡村振兴。

参照建筑与离宅半米说明
(注:现有信息中未明确“离宅半米”的具体要求,推测可能为老屋更新时对建筑间距或周边环境的控制标准;参照建筑多以当地传统民居为原型,保留黄墙、檐角、石板巷等元素,融合现代功能需求。)
1条评分金币+6
xgch 金币 +6 回复认真,加分鼓励 昨天 21:59
如何不发帖就快速得到金币道行
 
我有我可以
快速回复
限120 字节
认真回复加分,灌水扣分~
 
上一个 下一个