切换到宽版
  • 5阅读
  • 1回复

[奇观]大理变压沉浸式剧场 - 多重戏剧结构构成的非线性戏剧场域 / 时境建筑 [80P] [复制链接]

上一主题 下一主题
在线jjybzxw

UID: 551814

 

发帖
221791
金币
693093
道行
2006
原创
2450
奖券
3340
斑龄
42
道券
1233
获奖
0
座驾
设备
摄影级
在线时间: 48110(小时)
注册时间: 2008-10-01
最后登录: 2026-01-26
只看楼主 倒序阅读 使用道具 楼主  发表于: 3小时前


东南角鸟瞰全景 ©亮点影像
洱海西南侧的大理古城边,一座承载着 60 年代工业记忆的废弃变压厂,摇身成为超现实主义的 “平行空间” 剧场。这里彻底打破 “剧场 = 大盒子建筑” 的固有认知,更以 “城市即剧场,剧场即城市” 的先锋理念,解构传统线性叙事,构筑出多重流线并行的非线性戏剧场域 —— 工业遗迹、新媒体艺术与戏剧剧情不再是单一串联,而是交织成多维度的叙事网络。
室内空间早已超越单纯的建筑载体,化身由多重并行戏剧结构支撑的沉浸场域:四幕核心叙事并非唯一路径,而是与多条支线剧情形成呼应、重叠与分叉。观众既可循着主线完成 “情绪唤醒 — 欲望直面 — 记忆回溯 — 自我和解” 的蜕变,也可随时切入支线场景,在不同平行空间中偶遇专属的戏剧片段。每一个角落都是承载沉浸式展演的独特场域,空间序列为展演构建了并行的多重非线性逻辑,让展演与建筑深度共生, 每一步都推动观众自由穿梭于现实与幻境的灰空间,在多重戏剧维度中,完成一场独一无二的 “本我觉醒” 之旅。

东南角鸟瞰 © 夏至

正面凹槽空间 © 夏至

正面凹槽空间© 夏至

正面凹槽空间 © 夏至

正面过道空间 © 夏至
序章:售卖大厅「工业肌理与山海的初始对话」

文创商店 © 夏至
作为踏入剧场的第一重过渡空间,售卖大厅以工业文脉为基底,用材质与光影完成时空初阶转译。表层选用透光大理石暗藏巧思:既延续变压厂的工业机理,呼应场地 60 年代工业记忆,又以石材温润肌理衔接白族传统工艺匠心,半透效果恰似白族扎染的朦胧美学,让工业遗存与本土文化在材质层面无声对话。斜切线条打破传统售票厅规整,从厅内望去,苍山青黛与洱海波光构成框景式视野,室内工业材质、白族文化印记与室外自然盛景形成三重呼应,为即将开启的多重非线性戏剧之旅,埋下 “工业遗存、本土文化与自然共生” 的伏笔。

售票大厅© Atelier Alter Architects 时境建筑

剧场流线图

室外流线分析

功能分布

功能分布
第一幕:情绪酒吧「星光为引,塔罗启程」
情绪酒吧并非传统消费空间,而是承载“自我探寻”序幕的异托邦场域。情绪酒吧是一处超现实的虚幻空间 ——它既是酒吧,也是戏剧场域。它藏于工业厂房原始肌理中,推门即隔绝现实喧嚣,斑驳混凝土墙面与裸露钢梁构成空间底色,与头顶数千根光纤组成的星光灯形成强烈质感对比。光线透过工业管道缝隙流淌,墙面流动的光斑恰似苍山洱海剪影与赛博线条的蒙太奇,呼应大理“风花雪月”与工业文脉的碰撞。

情绪酒吧演绎区域 © 亮点影像

情绪酒吧 © 金伟琦
在这里,你会收到专属塔罗牌,这张“密钥”将指引后续探寻。沉浸式秀无固定舞台,演员穿梭于观众间,表演与星光光影联动,或倚钢梁低语,或随光纤明暗起舞。驻足凝视卡牌时,身旁纱幕会投射对应意象,这些影像通过动作捕捉技术随观众情绪实时调整,实现“千人千面”体验。 设计核心是“唤醒情绪,而非定义情绪”,援引波德莱尔美学,让工业粗粝的“黑暗底色”与星光、塔罗的“浪漫点缀”共生,让观众在放松中卸下伪装,直面内心真实情绪。收好卡牌前行时,身后星光会变换节奏,为这场探寻之旅送上无声祝福。

情绪酒吧 © 夏至

情绪酒吧 © 夏至

情绪酒吧 © Atelier Alter Architects 时境建筑

情绪酒吧 © 夏至

情绪酒吧 © 夏至

情绪酒吧家具 © Atelier Alter Architects 时境建筑

情绪酒吧 © 亮点影像
序厅
序厅是进入记忆碎片空间的过渡地带,也是工业遗迹的 “博物馆式呈现”。序厅空间运用 “空间切割” 的设计手法将破旧机器、工业遗迹与新媒体艺术交织,打造出一个 “切割式空间”,让观众在穿越工业碎片的过程中,回溯过往记忆,与 “本我” 进行深度对话。

序厅空间 © 亮点影像

序厅空间 © Atelier Alter Architects 时境建筑

序厅空间 © Atelier Alter Architects 时境建筑

序厅空间 © 亮点影像

序厅空间 © Atelier Alter Architects 时境建筑
整个空间布满许多废弃的机器零件装置,这些设备并未被整齐陈列,而是以 “开裂、倾斜、堆叠” 的方式分布,模拟出工业时代落幕的沧桑感。整个空间被机器切割出不规则的裂口,裂口处嵌入透明的玻璃,透过玻璃可看到设备内部的线圈、齿轮等零件,这些零件经过清理与修复。“历史的戏剧化”—— 这些废弃的机器不再是冰冷的工业遗迹,而是承载着时代记忆的 “戏剧道具”,它们的开裂与堆叠,恰似记忆的碎片化形态。

序厅地面细部 © Atelier Alter Architects 时境建筑

序厅空间 © Atelier Alter Architects 时境建筑

序厅地面细部 © Atelier Alter Architects 时境建筑
第二幕:欲望花园「灵欲共生,蝶花双链」
穿过序厅,便踏入了戏剧第二幕的欲望花园 —— 一个以 “直面欲望,探寻本我” 为核心的戏剧空间。这里是塔罗牌的解读场,也是机器美学与自然意象激烈碰撞的舞台,在此探讨 “人与机器、自然与工业” 的博弈关系。空间核心悬浮的DNA双环是理念灵魂载体。这种“机器构筑的生态”打破“生态即自然”的认知,是工业文脉与生命意象的共生、技术理性与生命感性的碰撞,恰如人内心欲望与本我的交织。它以非自然却仿自然的形态,成为直面欲望的注脚,引导人们在工业构筑的生命肌理中,触碰欲望本质,探寻本我内核。

欲望花园演绎空间 © 君看文化

欲望花园演绎空间 © 君看文化
两场风格迥异的表演在欲望花园交替上演,推动女主的蜕变剧情。一场是一对一式的近距离表演,演员与观众一对一互动,通过肢体语言与低语,引导观众直面内心隐藏的欲望,一场是群舞表演,十余位演员围绕“蝶羽花“起舞,他们的动作时而僵硬如机器,时而灵动如自然生灵,象征着 “人与机器的博弈”。舞台背景采用光纤像素屏,投射出流动的工业流水线与自然景观的叠加影像 —— 齿轮与花瓣共生,管道与藤蔓缠绕,进一步强化了空间的核心主题。

欲望花园演绎空间 © 君看文化

欲望花园演绎空间 © 君看文化

欲望花园演绎空间 © 君看文化

欲望花园演绎空间 © 君看文化

欲望花园演绎空间 © 君看文化

欲望花园舞美装置 © 君看文化

欲望花园舞美装置 © 君看文化
第三幕:记忆碎片「机器为骨,时空为魂」
穿过欲望花园,便进入记忆碎片空间,这里是整场剧情的 “反思核心”,也是新媒体艺术的集中呈现区。记忆碎片空间以多媒体为媒,铺展开一场跨越时空的记忆叙事 —— 这里散落着说话盒子、睡眠悬舱及立面延伸的说话盒子等多元演绎区域,所有空间均以各类多媒体屏幕为核心载体,将工业遗迹的粗粝与数字艺术的灵动交织,让记忆在虚实碰撞中拥有了可触碰、可对话的形态。

记忆碎片舞美分析图
说话盒子是空间的“情绪出口”:独立半封闭舱体源自废弃机床外壳改造,立面柔性媒体屏幕与工业金属肌理无缝衔接。观众步入其中诉说过往,声音信号实时转化为工业复刻、大理风花雪月或抽象情绪线条等流动影像。烟囱保留原厂工业形态,外壁投射流动记忆影像,成为空间视觉锚点。 一旁的开放研发中心无封闭墙体,以工业管道与金属框架界定边界,与周边通透联动。内设影像对话装置,可触控触发与“记忆中的自己”的虚拟对话;变压零件改造的机器人随背景LED屏数字代码起舞,兼具机器精准与人类灵动。

灵修空间演绎区域 © 夏至

研发空间演绎空间 © 亮点影像
研发中心的周围分布着多个睡眠悬舱,这些悬舱由原厂的吊车改造而成 —— 吊车的吊臂被固定在天花板上,悬舱外部是雨丝幕媒体影像。雨丝幕采用了最新的新媒体技术,可将人的影像实时投射其上 —— 观众可站在雨丝幕前,通过动作捕捉技术,让自己的影像与背景中的工业影像、自然影像叠加,形成 “梦幻影像 + 现实” 的视觉效果。

睡眠悬舱演绎区域 © 夏至

说话盒子演绎区域 © 夏至

说话盒子演绎区域 © 夏至

情绪医院演绎区域 © 亮点影像
记忆碎片演绎区域 © 君看文化

记忆碎片演绎区域 © 君看文化

灵修空间演绎区域 © 夏至

睡眠悬舱演绎区域 ©金伟琦

记忆碎片局部空间 ©亮点影像
第四幕:心音嗨场「狂欢为壳,和解为核」
经过前三幕的情绪唤醒、欲望直面与记忆回溯,剧情终于推向高潮 —— 心音嗨场,这里是矛盾爆发的核心,也是自我和解的终点。时境建筑打破了传统剧场的观演关系,将整个空间打造成一个 “派对式剧场”,让观众在狂欢中释放情绪,在互动中完成与 “本我” 的和解,呼应项目 “忠于自己心跳的觉醒之旅” 的核心主题。

心音嗨场主舞台区域 © 夏至
表演是嗨场的灵魂,没有固定的舞台,没有明确的观演界限,观众既可融入群舞的狂欢,也可在独处中与内心对话。群舞表演围绕开放酒吧展开,演员们身着融合工业元素与未来感的服装,随着动感的音乐起舞,他们的动作时而整齐划一如机器运转,时而自由奔放如自然生灵,象征着 “理性与感性的和解”。舞台背景采用巨大的 LED 冰屏,投射出流动的心跳曲线、工业流水线、自然景观与观众影像的叠加画面,让表演更具沉浸感。

心音嗨场主舞台区域 © 亮点影像

心音嗨场舞台区域 © 亮点影像

心音嗨场主舞台区域 © 亮点影像

心音嗨场主舞台区域 © 亮点影像

心音嗨场 © 亮点影像

心音嗨场 © 亮点影像

心音嗨场主舞台区域 © 亮点影像

心音嗨场 © 亮点影像

心音嗨场地屏区域 © 金伟琦

心音嗨场 © Atelier Alter Architects 时境建筑
当音乐达到高潮,所有演员与观众一同起舞,灯光、影像、音乐、肢体语言交织在一起,形成一场盛大的狂欢。此时,“城市即剧场,剧场即城市” 的理念得到完美诠释 —— 每个人都是剧情的参与者,每个人都是自己的主角,在这场狂欢中,矛盾得以爆发,情绪得以释放,自我得以和解。当狂欢落幕,观众带着满满的感动与觉醒离开,身后的变压剧场依旧灯火通明,工业遗迹与新媒体艺术的碰撞,还在继续书写着 “城市觉醒” 的故事。

心音嗨场 © Atelier Alter Architects 时境建筑

心音嗨场舞台区域 © 夏至

心音嗨场舞台区域 © 夏至

心音嗨场主舞台区域 © 君看文化
心音嗨场酒吧
嗨场侧方区域是开放酒吧,吧台由原厂的大型变压器改造而成,保留着变压器的原始外壳与金属质感,表面经过打磨、抛光后泛着冷冽的光泽。二楼的改造休憩区与记忆碎片空间相连,这里集中呈现了工业遗迹的创造性改造成果:变压厂的电线阻被重塑为棱角分明的卡座,保留着工业时代的粗粝质感;废弃的油箱被改造成私密包厢,内部铺设柔软的地毯与靠枕,搭配定制的灯光系统,成为观众休息、交流的专属空间。这些改造设计既尊重了场地的工业文脉,又赋予了空间新的功能,让 “工业遗迹重生” 的理念贯穿始终。

心音工厂舞美分析图

心音嗨场酒吧区域 © Atelier Alter Architects 时境建筑

心音嗨场酒吧区域 © 夏至

心音嗨场酒吧机打头 © 夏至

心音嗨场酒吧区域 © 夏至

心音嗨场酒吧包厢细部 © Atelier Alter Architects 时境建筑

心音嗨场酒吧细部 © Atelier Alter Architects 时境建筑

心音嗨场包厢区域 © Atelier Alter Architects 时境建筑

心音嗨场酒吧二楼卡座 © 亮点影像

心音嗨场酒吧二楼卡座 © 夏至
大理变压剧场的室内空间,是对 “建筑与戏剧辩证关系” 的完美诠释。工业遗迹不再是沉默的载体,而是参与剧情的重要角色;新媒体艺术不再是单纯的装饰,而是推动叙事的核心力量。四幕剧情环环相扣,从情绪唤醒到欲望直面,从记忆回溯到自我和解,形成完整的逻辑链,让观众在穿越现实与幻境的过程中,完成一场关于 “本我觉醒” 的蜕变之旅。这里不仅是一个剧场,更是一个精神场域,它让工业文脉得以重生,让城市灵魂得以觉醒,让每个踏入这里的人,都能找到属于自己的 “心跳之声”。

西南角鸟瞰 © 亮点影像
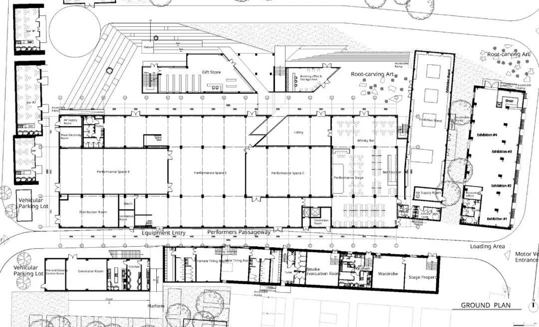
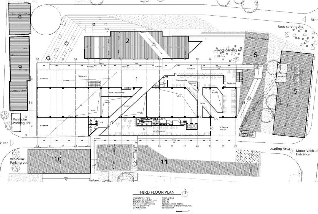
项目图纸

变压剧场 总图

变压剧场 剖面
变压公园 总平面图

变压剧场 FL001

变压剧场 FL1

变压剧场 FL002
项目名称:大理变压沉浸式剧场
项目总策划、创制及运营:君看文化
业主:大理古城华侨城投资开发有限公司
时间:2023年5月
类型:沉浸式剧场
占地面积:13358平方米
总建筑面积:9751平方米
造价:1.3亿人民币
施工总包:中国中铁十八局集团有限公司
地点:中国 大理
建筑设计:Atelier Alter Architects 时境建筑
室内设计及FF&E:Atelier Alter Architects 时境建筑
主持建筑师:张继元、卜骁骏
设计团队:李振伟,蒋萍,缪斯,薛腾,杨辛辰,覃雅蘭,梅家铭,宋利东,蒋丽,曹纯彪,倪震,刘小琰,段嘉妍
项目总策划及剧目创制:君看文化
总导演:杨乐
制作人:倪伟伶
执行导演:高婕妤
联合设计院:北京市建筑设计研究院有限公司
项目负责人:周润、秦凯
建筑专业:孔维、裴燕、白瀚
结构专业:李文峰、李兴旺、刘钧
机电专业:祁峰、裴雷、张成、李雨婷、李林杰
声学专业:陈金京、武舒韵
景观设计单位:北京原筑景观规划设计有限公司
主持设计师:孟凡玉
设计团队:官苗苗、王滕、王振宇、赵姿涵、郝悦、周莹
精装深化:广州博厦建筑设计研究院有限公司
负责人:宋健
设计团队:郑志军、文丽、梁志远、韦俊侃
二次机电专业:陈新智、谢宇炎
新媒体艺术:某集体 ART+TECH
创意总监:费俊
创制团队:邱宇、邢丹、闫建云、沙靖海、郑凯文、尚垒、孙艺菡、吴思靖、佟天泽、宫一宁、杨亚非、潘俊杰、黄筱茜、康艺、王鹏、王人庆、冯菁怡、王芹
舞美设计:Atelier Alter Architects 时境建筑设计事务所(情绪酒吧、嗨场、女王直播间、睡眠悬舱), 某集体ART+TECH(幼稚食堂、研发空间、灵修空间、规训教室), 宁波象保合作区陶象驹影视工作室(记忆碎片、回忆长廊)
照明顾问:GD lighting design 大观国际设计咨询有限公司
标识顾问:某集体 ART+TECH,降解设计实验室
幕墙顾问:重庆银桥工程设计(集团)有限公司
摄影师:夏至、Highlite Images (亮点影像)、金伟琦,Atelier Alter Architects 时境建筑
视频:夏制映画Xia Zhi Pictures
图片版权:Atelier Alter Architects 时境建筑
山庄提示: 道行不够,道券不够?---☆点此充值☆
 
在线jjybzxw

UID: 551814


发帖
221791
金币
693093
道行
2006
原创
2450
奖券
3340
斑龄
42
道券
1233
获奖
0
座驾
设备
摄影级
在线时间: 48110(小时)
注册时间: 2008-10-01
最后登录: 2026-01-26
只看该作者 沙发  发表于: 3小时前
Re:大理变压沉浸式剧场 - 多重戏剧结构构成的非线性戏剧场域 / 时境建筑 [77P]
大理变压沉浸式剧场:工业废墟中的“超现实戏剧宇宙”与空间诗学
一、项目背景:工业遗址的“时空折叠”与戏剧革命
1. 场地基因:60年代变压厂的“记忆容器”  
项目位于洱海西南侧的大理古城边,原为1960年代建造的变压厂。设计以“城市即剧场,剧场即城市”为核心理念,将工业遗迹转化为非线性戏剧场域,打破传统剧场“大盒子”的封闭性,构建出多重流线并行的沉浸式空间网络。

2. 叙事逻辑:从线性剧情到平行宇宙  
剧场通过四幕核心叙事(情绪酒吧→欲望花园→记忆碎片→心音嗨场)与多条支线剧情交织,形成“非线性戏剧结构”。观众可自由选择路径,在工业遗存、新媒体艺术与戏剧剧情的碰撞中,完成“本我觉醒”的蜕变之旅。
二、空间设计:工业肌理与数字艺术的“超现实对话”
1. 售卖大厅:工业与自然的“初始对话”  
材质转译:透光大理石延续工业肌理,半透效果呼应白族扎染的朦胧美学;斜切线条打破规整,框景苍山洱海,形成“工业-文化-自然”的三重呼应。  
功能隐喻:作为过渡空间,售卖大厅通过材质与光影完成时空转译,为后续戏剧体验埋下伏笔。

2. 情绪酒吧:星光与塔罗的“情绪启蒙”  
空间底色:斑驳混凝土墙面与裸露钢梁构成工业粗粝感,数千根光纤组成的星光灯形成浪漫点缀,呼应大理“风花雪月”与工业文脉的碰撞。  
交互体验:观众领取专属塔罗牌,沉浸式秀通过动作捕捉技术实时调整纱幕投影,实现“千人千面”的情绪唤醒。

3. 欲望花园:机器与生命的“灵欲共生”  
核心装置:悬浮的DNA双环打破“生态即自然”的认知,象征工业文脉与生命意象的共生。  
表演策略:一对一互动表演引导观众直面欲望,群舞表演通过“僵硬如机器”与“灵动如生灵”的对比,强化“人与机器的博弈”主题。

4. 记忆碎片:多媒体与工业遗迹的“时空拼贴”  
说话盒子:废弃机床外壳改造的独立舱体,观众声音实时转化为工业复刻或大理风光的流动影像。  
睡眠悬舱:原厂吊车改造的悬舱,外部雨丝幕媒体影像通过动作捕捉技术叠加观众影像,形成“梦幻+现实”的视觉效果。

5. 心音嗨场:狂欢与和解的“终极派对”  
空间革命:打破传统观演关系,开放酒吧与主舞台融合,演员与观众共舞,LED冰屏投射心跳曲线与工业流水线的叠加画面。  
工业重生:变压器改造的吧台、电线阻重塑的卡座、油箱改造的私密包厢,赋予工业遗迹新功能。
三、设计策略:从“废墟保护”到“空间叙事”的范式突破
1. 旧材新用:工业遗迹的“戏剧化转译”  
保留与介入:保留变压厂原始肌理(如混凝土墙面、钢梁),通过新媒体艺术(如光纤灯、LED屏)赋予其新叙事功能。  
功能重构:将废弃机器(如变压器、吊车)改造为剧场设施,实现“工业遗迹重生”的可持续设计。

2. 光影诗学:数字艺术的“空间情绪引擎”  
动态光影:情绪酒吧的星光灯、欲望花园的光纤像素屏、心音嗨场的LED冰屏,通过光影变化引导观众情绪。  
交互投影:记忆碎片空间的雨丝幕、说话盒子的柔性媒体屏幕,通过动作捕捉技术实现“观众即内容”的沉浸体验。

3. 流线设计:非线性叙事的“空间剧本”  
多入口设计:观众可自由选择路径,支线剧情与主线叙事交织,形成“平行宇宙”般的戏剧体验。  
垂直动线:利用二层露台与室内楼梯,构建“观察-参与-反思”的多层次空间序列。
四、理论对话:空间、戏剧与记忆的交叉实验
1. 空间生产理论  
列斐伏尔的“空间生产”理论在此得到实践:剧场通过工业遗迹的改造,将“物理空间”转化为“社会空间”,成为城市文化记忆的载体。

2. 沉浸式戏剧的“空间转向”  
区别于传统戏剧的“舞台中心制”,大理变压剧场通过空间本身成为叙事主体,观众在移动中完成剧情体验,呼应了“空间即戏剧”的当代剧场革命。

3. 废墟美学的“浪漫化重构”  
本雅明笔下的“废墟价值”在此被重新诠释:工业遗迹不再是衰败的象征,而是通过数字艺术与戏剧叙事获得“超现实”的新生命。
五、实践启示:小规模项目的“设计伦理”
1. 尊重在地性  
设计保留大理本土文化(如白族扎染、风花雪月)与工业文脉的对话,避免过度商业化改造。

2. 控制成本与完成度  
通过旧材新用(如废弃机器改造)与模块化设计(如标准化的多媒体屏幕),实现1.3亿造价下的高完成度。

3. 平衡功能与诗意  
剧场既满足沉浸式戏剧的技术需求(如动作捕捉、实时投影),又通过空间序列设计(如售卖大厅的框景、欲望花园的DNA双环)营造诗意体验。
结语:废墟中的“空间觉醒”
大理变压剧场以工业废墟为画布,用数字艺术与戏剧叙事重构时空,将“废弃变压厂”转化为“城市精神场域”。它证明:建筑的价值不仅在于形式创新,更在于其对城市记忆的唤醒、对文化基因的激活,以及对人与空间关系的深刻重塑——这或许正是当代建筑最本真的使命。

如何不发帖就快速得到金币道行
 
快速回复
限120 字节
认真回复加分,灌水扣分~
 
上一个 下一个