“当校园不再有孩子,它并不意味着空间的终结;当存量建筑退出原有职能,它也并非时代的旧物,而是一次重新介入公共生活的起点。”
孟凡浩

在中国乡村持续面临老龄化与低生育率的背景下,大量校园空间被闲置。line+联合创始人、主持建筑师孟凡浩以广东惠州徐田村一所废弃小学为载体,通过结构保留、空间重组与公共场景导入,让建筑重回日常生活,探索一种面向长期转型的公共再生路径。



徐田村位于罗浮山南麓,是一座拥有三百余年历史的客家古村落,亦是珠三角向粤东北过渡的重要节点。在广东省“百县千镇万村高质量发展工程”(百千万工程)推进下,徐田被列为首批典型村。本项目作为环南昆山—罗浮山高质量发展引领区(“环两山”)中的关键示范工程之一,承载着未来乡村空间与公共服务体系重构的实践使命。

△ 区位图

△ 徐田村风貌
不同于line+在舟山柴山岛将废弃校园改造为托老所的策略——以单一功能替代作为更新路径以回应亟待解决的海岛老龄化问题。徐田未来乡村中心的焦点从功能置换转向公共活力的激活,在文旅与社区的复合语境中,拓展存量校园的再生边界,为“百千万工程”下的乡村更新提供更具持续性的“徐田范式”。

01.
困境与破局:从“闲置小学”到“古村门户”
徐田村依托罗浮山山体与水系资源,文旅业态初具规模,但公共服务空间的长期缺位逐渐成为发展的关键掣肘。村民日常与对外接待之间,始终缺乏稳定而有效的空间载体。

△ 小学改造前
场地原为一所村级小学,两栋三至四层的教学楼南北并列,中间是开阔却尺度疏离的操场。学校停办后,这组结构完整的建筑迅速陷入“功能悬置”的状态:围墙封闭、入口单一、建筑间缺乏互动,与古村落的开放肌理格格不入。

△ 概念体块模型
△ 整体生成分析

△ 改造前后对比
与此同时,场地位于村庄入口节点,连接聚落内部、公园与自然景观,是村民与访客的必经之处。这种“区位关键而使用消极”的状态,使其成为一次结构性更新的契机。


基于此,设计提出从“场地”到“聚落”的空间重组策略:
散点体块 · 向心围合
借鉴客家传统聚落“外环—内核”的原型,在首层嵌入一组小尺度的功能体块。通过旋转与位置调整,这些体块与环形展廊共同围合出以古树为中心的共享广场,将原本消极的建筑间距转化为村庄内部的公共核心。

△ 整体模型

△ 场地改造前后对比



历史串联 · 景观引导
从场地西侧古祠堂出发,利用地形高差、广场铺排与水渠串联,将祠堂与场地入口及公共广场自然衔接,使访客和村民在步行路径上自然而然感知村落历史肌理与空间层次。

入口优化 · 动静分区
主入口移至两栋建筑之间的公共广场,面向村庄,成为村民日常进出的核心界面;原南侧封闭入口转化为独立后场,用于行政接待。

△ 南侧教学楼改造成为党群服务中心
连续展廊整合零散墙体,形成文化交流界面,强化建筑与村庄的互动。




轻覆其上 · 聚合其下
在既有混凝土框架之上,新增轻质坡屋顶以“漂浮”的方式叠加。这一举措不仅回应了岭南气候,更在视觉上强化了新旧结构的层次,使公共空间的生成从地面延展至天际线,使其成为环两山沿线一道独特的风景。

△ 教学楼改造前后对比


02.
场景与活力:主客共生的复合公共体
作为一座依托小学旧址改造而成的未来乡村中心,该项目在起步之初,便面临着诸多未知与挑战:如何平衡外来游客与本地村民之间的互动关系,如何合理引入并配置新的功能业态,如何统筹未来乡村中心的整体运营——这些都没有现成的经验可循。

作为牵头设计单位,line+在项目启动之初便以“运营前置”为前提,与当地县政府及文旅投资平台展开深度共创,共同探讨乡村中心的功能构成与产业发展方向。




△ 村民礼堂剖透视



△ 村民礼堂

△ 儿童活动室剖透视

△ 儿童活动室




△ 咖啡店
在空间组织上以中心广场为核心,首层及低层形成开放、连续的公共界面,集中承载社区与文旅复合功能,使不同年龄与身份的人群在同一场域中交汇与共享。



功能在垂直维度进一步分层:南侧以党群服务与社区治理为主,北侧植入青旅客房与创客空间,与既有民宿体系形成补充。通过功能复合与流线分离,实现多群体在同一结构中的有序共存。最终,项目将“未来社区”的多元场景,转化为一个可运行、可持续的乡村复合公共体。

△ 多元活动场景
03.
营造与技艺:新旧共生的低碳路径

在建造策略上,项目面临修缮维护与原址重建的抉择。line+基于空间适应性及“百千万工程”绿色发展要求,选择生态效益更优路径。作为一所遵循标准形制建造的小学,原建筑层高约3.6米,房间进深约6.5米,规整的混凝土结构框架赋予其较高的空间灵活性。


△ 教学楼改造前后对比
面对功能业态的全面更新,现有空间体系仍能从容适配,无需进行大规模的拆改干预。经结构安全性与抗震性能鉴定,主体结构状态良好,仅需局部加固即可满足现行规范与使用要求。



与此同时,在概念方案确定之初,团队即聚焦建材生产环节展开碳排放量化分析,旨在通过可测算的指标,揭示修缮维护与拆除重建之间的环境效益差异。以三层教学楼为例,方案保留了原有混凝土结构框架及部分内墙,拆除外围护界面,并在屋顶层局部增设钢结构。

△ 改造策略

△ 保留原有混凝土结构框架

△ 建造过程
综合测算显示,在“部分保留”的策略下,隐含碳贡献量占整栋建筑隐含碳总量的20.64%。在如此显著的占比之下,修缮维护显然具备更优的经济性、生态效益与实施效率,为未来乡村建设提供可复制的低碳更新路径。

△ 建筑隐含碳计算

材料策略强调在地性与克制性,力求与罗浮山下古村落的历史风貌和谐共生。建筑立面与公共空间大量采用旧瓦、老青砖、毛石及木材等在地材料,通过再利用延续村庄原有的材料肌理,避免过度装饰带来的陌生感。原有结构仅进行必要修复,使其作为“旧”的时间层被保留。



△ 材料打样对比
与之形成对比的是新介入的钢构连廊、玻璃围护及轻质屋面系统。这些构件在材料与构造上保持清晰的当代属性,却在尺度与细节上保持克制,不刻意强调形式张力,而是以轻巧的方式嵌入既有结构之中。


04.
结语:未来乡村的“徐田样板”

徐田未来乡村中心不止于一次建筑改造,而以温和而有力的方式回应乡村社会转型中的“公共性缺席”问题。它让被时代遗忘的空间重新成为情感与活动的汇聚场,回到村庄的生活逻辑之中。

△ 改造前后对比
在老龄化与低生育率持续加剧的背景下,校园空间的系统性闲置已成为乡村更新中无法回避的现实议题。我们不以单一功能替代作为答案,而是尊重时间、保留记忆与激活公共性的方式,让空间重新成为人与人之间新的连接点。

作为“环两山”引领区中的关键示范工程和广东未来乡村的样板,徐田村以实践回应“百千万工程”的空间命题,探索出面向长期转型的存量更新路径。在罗浮山脚下,这一古村再生不再是个例,而是一条可持续验证的实践方法。

技术图纸

△ 首层平面图

△ 二层平面图

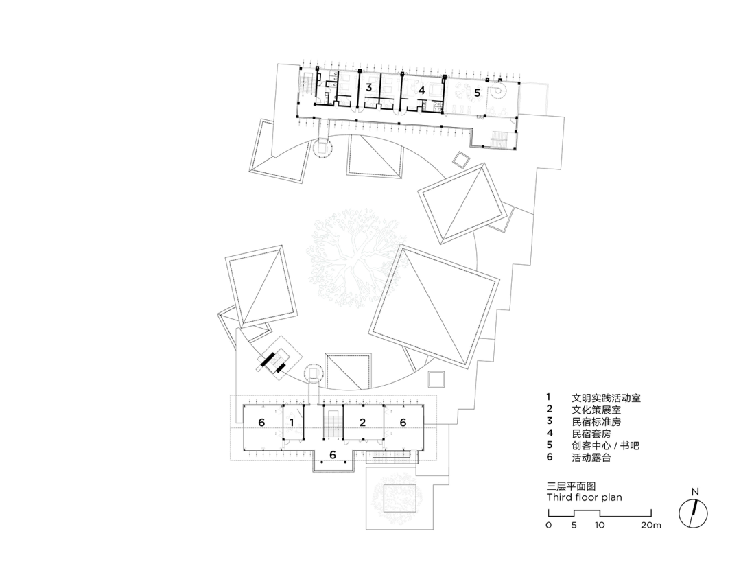
△ 三层平面图

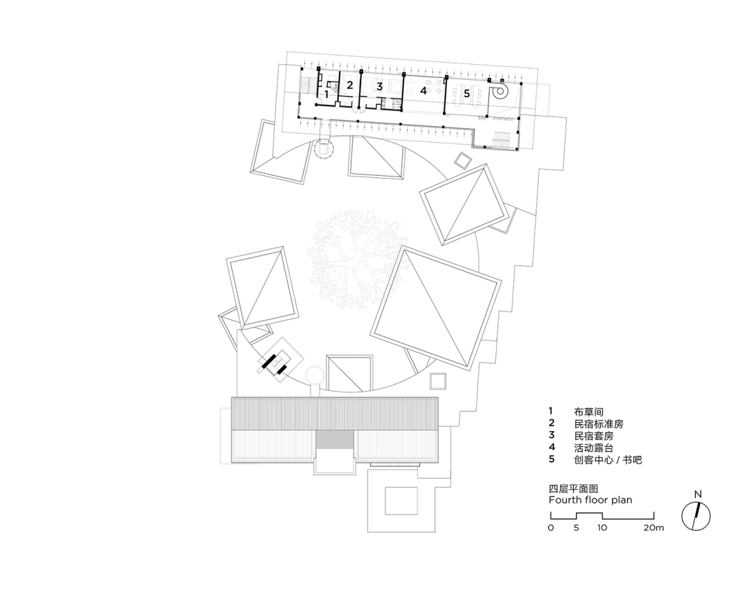
△ 四层平面图
项目名称:惠州徐田未来乡村中心
建筑、室内设计:line+建筑事务所
主持建筑师/项目主创:孟凡浩设计团队:袁栋、薛正楠、缑凡林、寿成彬、王逸品
绿建顾问:李航、夏特
驻场建筑师:薛正楠
业主:博罗县政府、惠州博罗县罗浮山文化旅游投资集团有限公司
景观设计:AURA奥冉设计
软装设计:杨钧设计事务所
施工图合作单位:惠州市建筑设计院有限公司
施工方:中交第四航务工程局有限公司
项目位置:广东省惠州市博罗县徐田村
建筑面积:3358.45平方米
设计周期:2024.11-2025.06
建设周期:2025.02-2025.10
结构:混凝土框架结构,钢结构
材料:青砖、毛石、木纹清水混凝土、耐候钢、弹性涂料、石板瓦、铝镁锰板、仿木纹铝板等
摄影:line+